Lagerraum mieten - Schlossbergstrasse, 8590 Romanshorn
Warum Sie diese Immobilie lieben werden
Geräumiger Dachboden
Kein Liftzugang
Besichtigung anfragen
Besichtigung vereinbaren
Besichtigung buchen
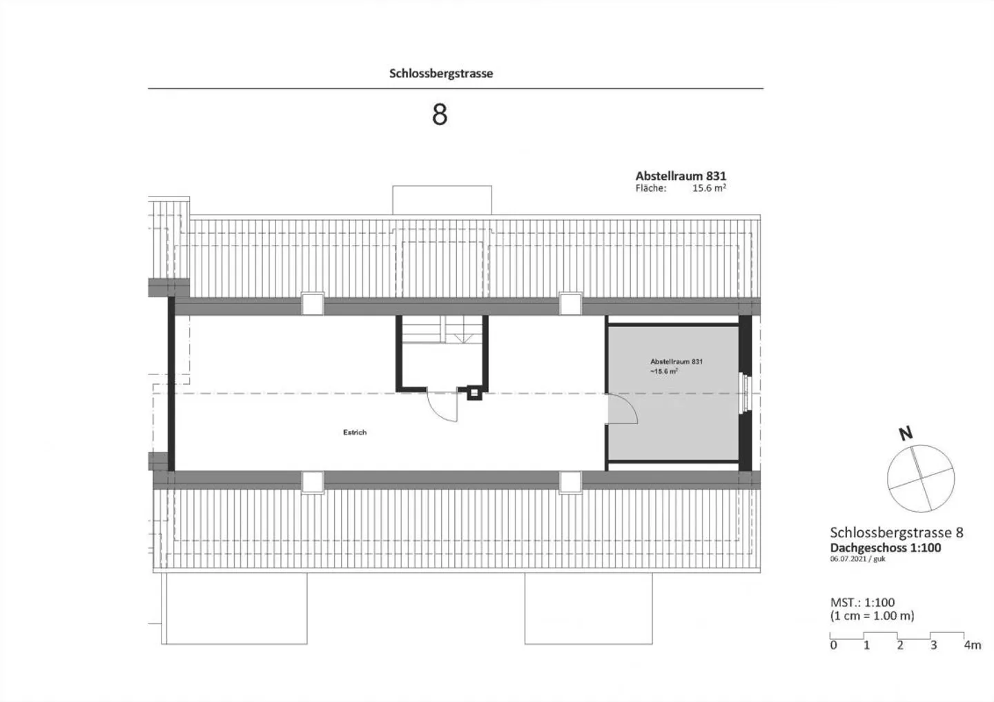
Sie brauchen platz! - wir haben ihn!
Falls Sie noch Platz für Ihre Sachen benötigen, so haben wir noch Lagerräume frei, im Dachgeschoss.
Die Liegenschaft hat keinen Lift.
Für eine Besichtigung vor Ort rufen Sie uns an!
Immobiliendetails
- Verfügbar ab
- Nach Vereinbarung
- Renovierungsjahr
- 2022



