Bürofläche mieten - Otmarhof, 8594 Güttingen
Warum Sie diese Immobilie lieben werden
Flexible Gestaltungsmöglichkeiten
Grosse Fenster für Sichtbarkeit
Zentrale Lage mit Zugang
Besichtigung vereinbaren
Besichtigung mit Melanie buchen
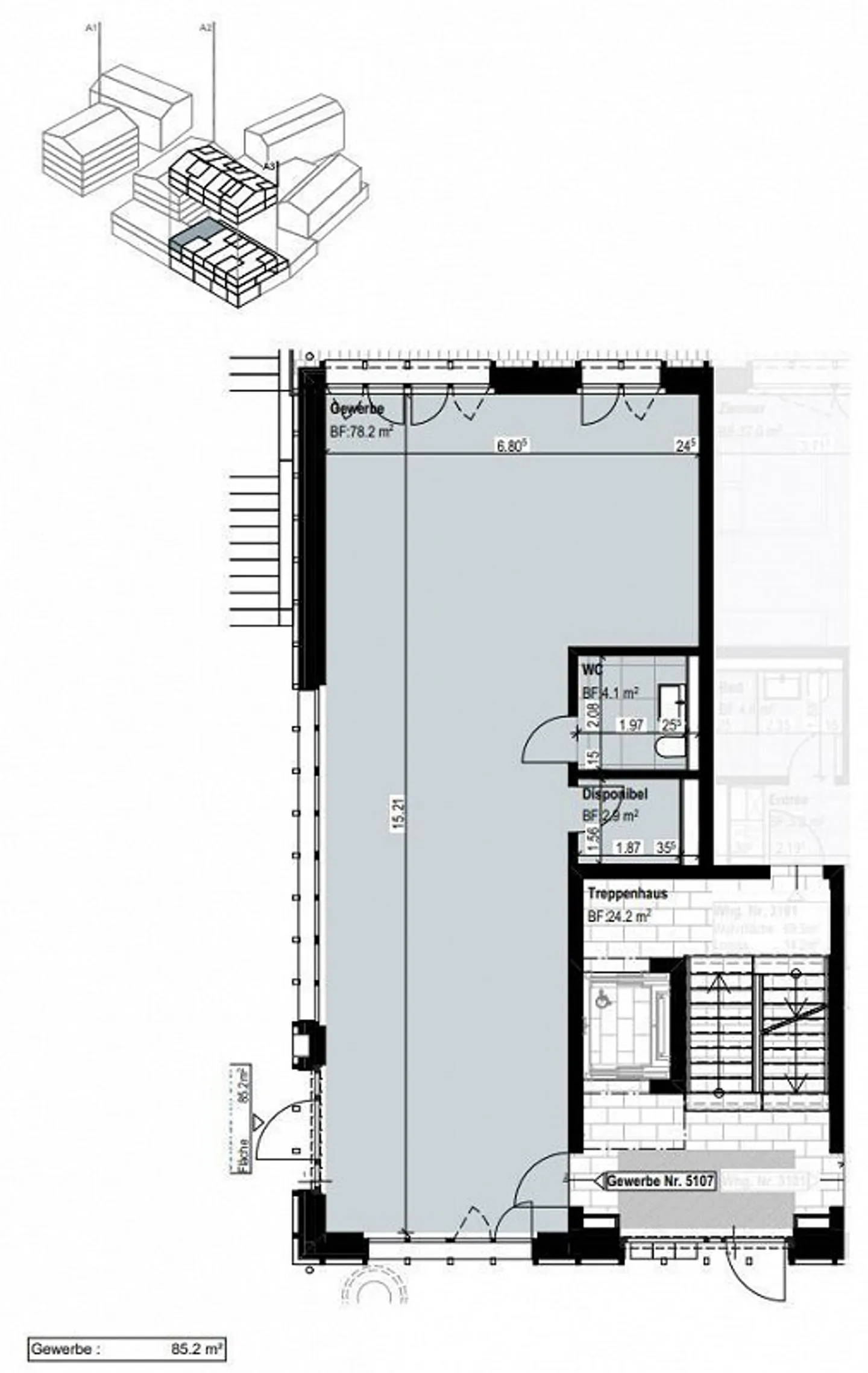
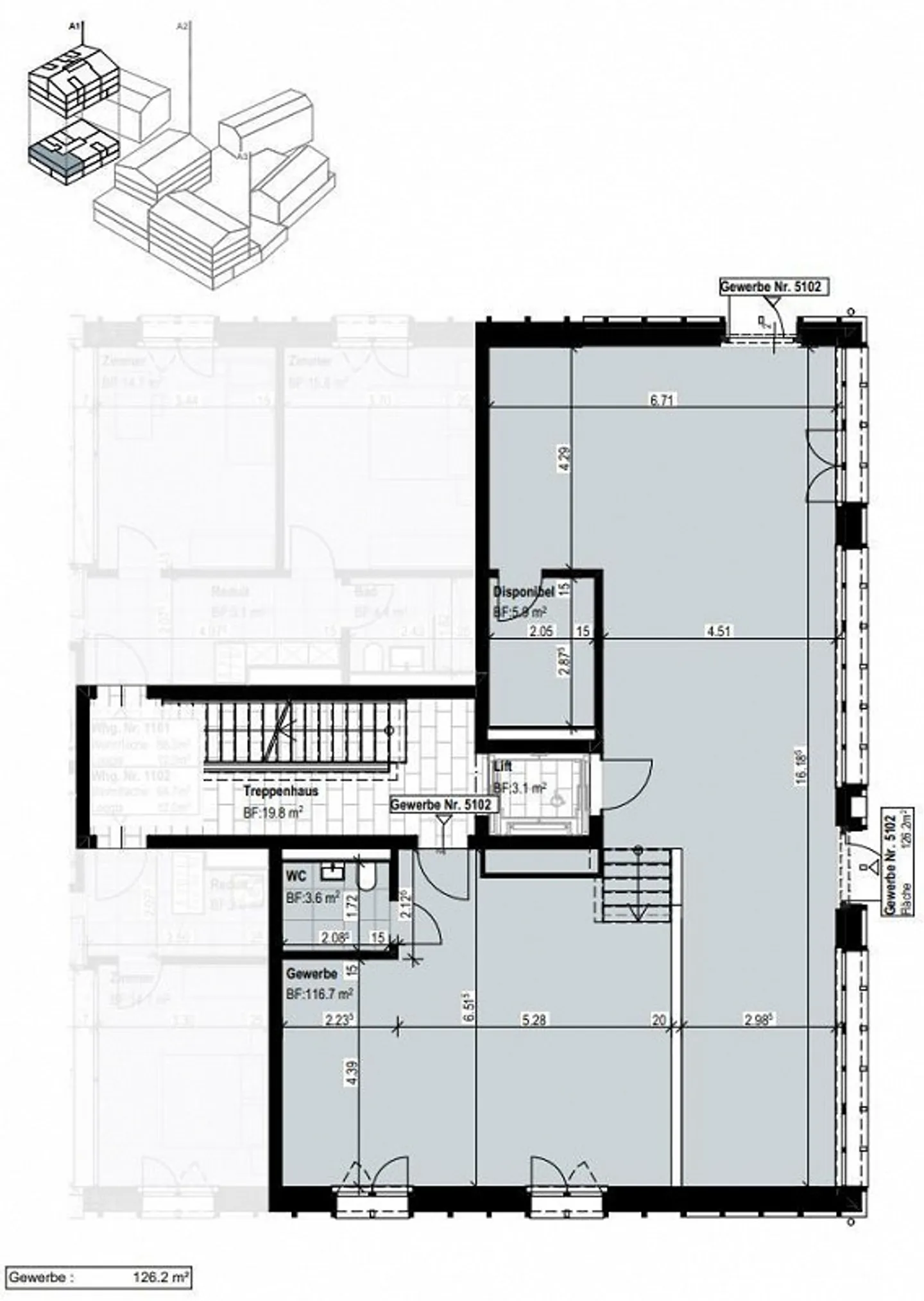
ERSTBEZUG - Attraktive Gewerbeflächen zwischen 85 und 126 m2
An zentralster Lage zwischen Bahnhof- und Hauptstrasse liegt die neue Überbauung Otmarhof, die in drei Gebäudekörpern neben 32 Mietwohnungen auch 4 Gewerbeflächen und Lagerflächen umfasst. Die Objekte können ab sofort bezogen werden.
Folgende Gewerbeflächen stehen noch zur Verfügung:
- Objekt 5107 mit 85.2 m2 im Otmarhof 6 (Haus A3)
- Objekt 5105 mit 117.6 m2 im Otmarhof 4 (Haus A2)
- Objekt 5102 mit 126.2 m2 im Otmarhof 2 (Haus A1)
Sämtliche Gewerbeobjekte sind ebenerdig von aussen zugänglich und...
Kostenaufstellung
- Nettokosten
- CHF 1’425
- Zusätzliche Kosten
- CHF 210
- Gesamtkosten
- CHF 1’425
Immobiliendetails
- Verfügbar ab
- Nach Vereinbarung



