Lagerraum mieten - Naphtastrasse, 8005 Zürich
Warum Sie diese Immobilie lieben werden
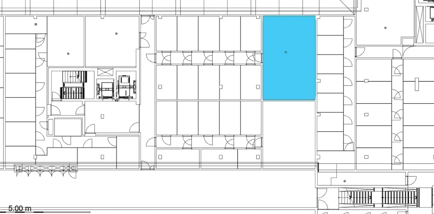
50 m² Lagerfläche
Zugang via Lift und Treppe
Wohn- und Gewerbemischung
Besichtigung vereinbaren
Besichtigung mit Ahmeti buchen
Lagerraum nähe prime tower
Im Maaghof, in einer Liegenschaft mit Wohn- und Gewerbeflächen, vermieten wir in unmittelbarer Nähe zum Prime Tower per 01.03.2026 einen Lagerraum.
Eckdaten zum Lagerraum:
Fläche: ca. 50 m2
Stockwerk: 1. Untergeschoss
Zugang: via Lift und Treppe möglich
Sollten wir Ihr Interesse geweckt haben, zögern Sie nicht uns zu kontaktieren!
Für Besichtigungen wenden Sie sich bitte an maaghof@wincasa.ch.
Immobiliendetails
- Verfügbar ab
- 01.03.2026
- Baujahr
- 2015
- Wohnfläche
- 50 m²
- Nutzfläche
- 50 m²


