1 / 11

Gewerbe mieten - Maria-Stader-Weg, 8590 Romanshorn

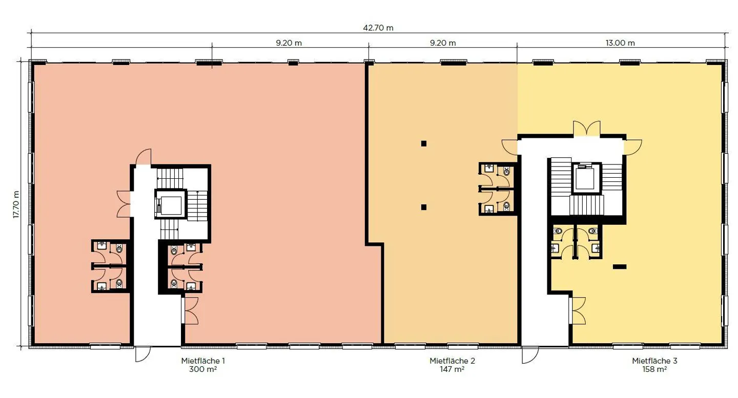
Erdgeschoss
Preis auf Anfrage
-

Warum Sie diese Immobilie lieben werden

Zentrale Lage für Kunden

Flexible Gestaltungsmöglichkeiten

Sofort verfügbar nach Ausbau

Besichtigung vereinbaren

Besichtigung mit Sara buchen

Sara Schoch Wincasa AG Sara Schoch St. Leonhardstrasse 39 Postfach CH-9001 St. Gallen Phone: +41 71 421 69 09 E-Mail: sara.schoch@wincasa.ch

Erstklassige lage nähe bahnhof und zentrum!

Eröffnen Sie Ihren neuen Business-Standort an der Schlossbergstrasse (Maria-Stader-Weg 2/4) in Romanshorn. Die ideale Infrastruktur an zentraler Lage ist individuell ausbau- bzw. aufteilbar, ansprechend und einladend.

Hier vorab einige Eckdaten zu den Mietflächen 2 + 3:

- Zentrale Lage, nahe bei Ihrer Kundschaft

- Mietflächen von 159 m2 bis 321 m2 im Erdgeschoss

- Lagerflächen von 36 m2 bis 77 m2 im Untergeschoss

- Sofort nach Ausbau verfügbar

- Gute Infrastruktur und Erschliessung

- Bahnhof und B...

Immobiliendetails

Verfügbar ab
Nach Vereinbarung
Baujahr
2010

Eigenschaften

Garage
Parkplätze
Lift

Agentur

Adresse:St. Gallen, St. Leonhardstrasse 39, 9001
Ref: 1DF1
Online seit
22/05/2025
vor 5 Monaten

Standort

Maria-Stader-Weg, 8590 Romanshorn

Quellen