Werkstatt mieten - Industriestrasse, 8450 Andelfingen
Warum Sie diese Immobilie lieben werden
Ausgezeichnete Lkw-Zufahrt
5-Tonnen-Kran vorhanden
Strategische Industrie-Lage
Besichtigung vereinbaren
Besichtigung buchen
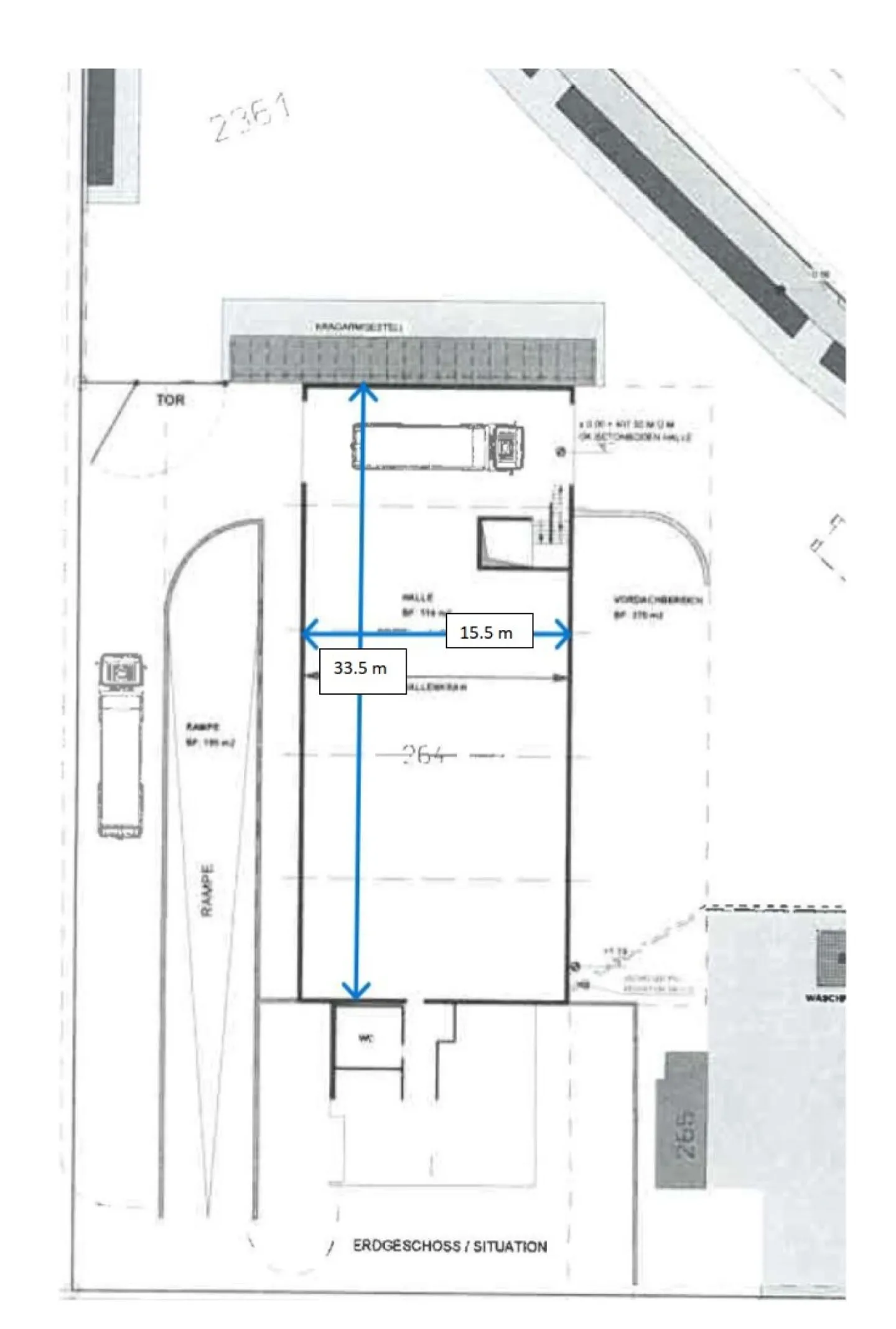
Werkstatt/lagerhalle 'im bilg' im industriegebiet andelfingen
Die Lagerhalle 'Im Bilg' befindet sich in einem gut erschlossenen Industriegebiet in Andelfingen. Sie zeichnet sich durch ihre hervorragende Erreichbarkeit aus und kann problemlos von Lastwagen befahren werden. Zudem verfügt die Lagerhalle über einen Hallenkran mit einer Tragkraft von bis zu 5 Tonnen."
Kostenaufstellung
- Nettokosten
- CHF 3’900
- Zusätzliche Kosten
- CHF 300
- Gesamtkosten
- CHF 3’900
Immobiliendetails
- Verfügbar ab
- Nach Vereinbarung



