Gewerbe mieten - Im Langacker, 5405 Dättwil AG
Warum Sie diese Immobilie lieben werden
Helle und geräumige Fläche
Über Lift zugänglich
Parkplätze für Mitarbeiter vorhanden
Besichtigung vereinbaren
Besichtigung buchen
Showroom/bürofläche
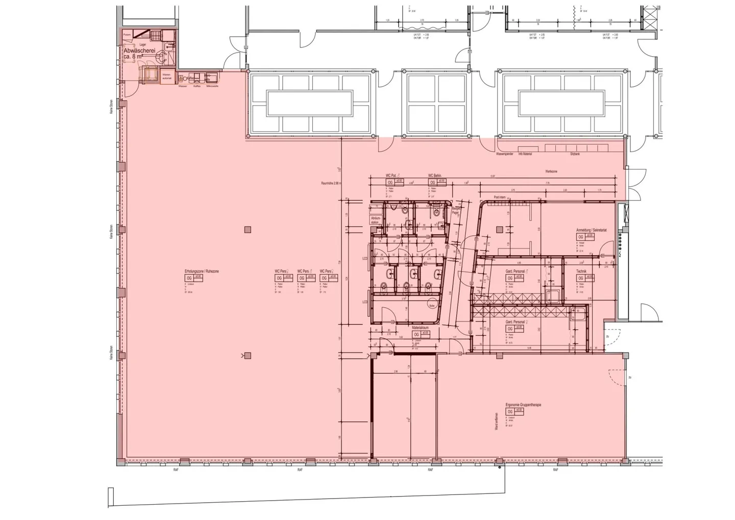
An verkehrsgünstiger Lage in der Gewerbezone von Dättwil vermieten wir einen ansprechenden, gut belichteten und hellen Showroom, resp. eine Bürofläche mit 488 m².
Die Räumlichkeiten präsentieren sich im Grundausbau und sind über das Treppenhaus mit Personen- und Warenlift gut erschlossen. Waren können über die Rampe angeliefert werden.
Das Objekt verfügt über einen Empfang, zwei separate Büros sowie eine eigene Toiletten- und Duschanlage. Die offene Fläche kann als Showroom genutzt oder unterteilt...
Kostenaufstellung
- Nettokosten
- CHF 205
- Zusätzliche Kosten
- CHF 25
- Gesamtkosten
- CHF 205
Immobiliendetails
- Verfügbar ab
- Nach Vereinbarung
- Wohnfläche
- 488 m²
- Nutzfläche
- 488 m²



