Gewerbe mieten - Frauenfelderstrasse, 8404 Winterthur
Warum Sie diese Immobilie lieben werden
Individuelle Raumgestaltung
Teil eines großen Projekts
Gute Verkehrsanbindung
Besichtigung vereinbaren
Besichtigung mit Eva buchen
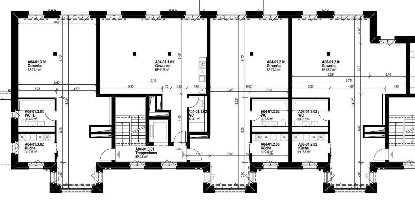
Büro, atelier oder praxis?
Was: Gewerbeflächen (à 70 bis 200 m2) mit Nasszellen und Küchen im 1. OG.
Wofür: Die Flächen können individuell als Büro, Atelier oder Praxis ausgebaut werden.
Wo: In Oberwinterthur im bewilligten Projekt "Eichwaldhof" - ein grosses Wohnprojekt mit einzelnen Gewerbeflächen und 330 Wohnungen
Standort: zwischen Frauenfelderstrasse und Schoorenstrasse/ Eichwaldgraben ? mit ÖV und Auto gut erreichbar
Wann: Baubeginn ab 2025, Bezug ab 2027
Immobiliendetails
- Verfügbar ab
- 01.01.2027
- Baujahr
- 2026
- Wohnfläche
- 90 m²
- Nutzfläche
- 90 m²



