Arztpraxis mieten - Dynamostrasse, 5400 Baden
Warum Sie diese Immobilie lieben werden
Erstklassige Lage beim Bahnhof
Modernes, nachhaltiges Design
Flexible Raumnutzung möglich
Besichtigung vereinbaren
Besichtigung mit Krüsi buchen
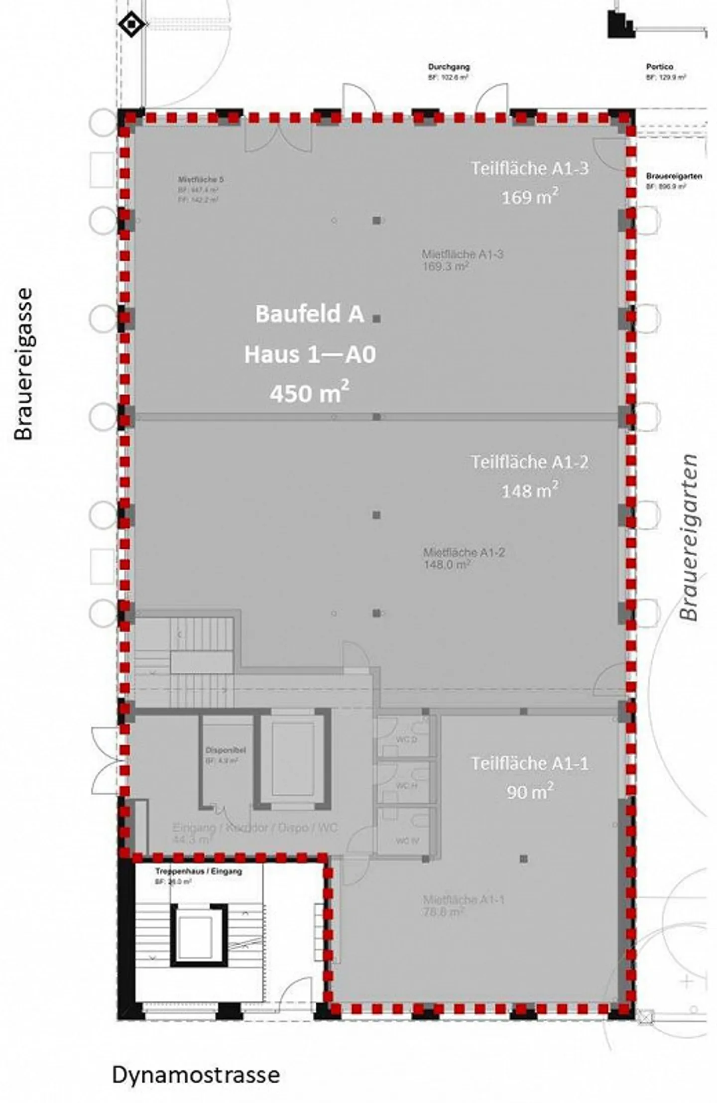
Müllerbräu Areal Baden – 450 m² Erdgeschossfläche im Trendquartier ...
Direkt beim Bahnhof Baden entsteht bis 2027 ein neuer Stadtteil unter dem Motto <>.
Das Müllerbräu Areal vereint historische Atmosphäre mit moderner Architektur und wird künftig zu einem lebendigen Treffpunkt für Wohnen, Arbeiten und Geniessen. Nur einen Steinwurf von den Gleisen entfernt vermieten wir attraktive Gewerbe-, Dienstleistungs- und Verkaufsflächen in einem Umfeld, das Urbanität, Qualität und Sichtbarkeit verbindet. Der Grossteil der Flächen ist bereits vergeben – nur noch wenige...
Immobiliendetails
- Verfügbar ab
- Nach Vereinbarung
- Baujahr
- 2027



