Lagerraum mieten - Buchmattstrasse, 3400 Burgdorf
Warum Sie diese Immobilie lieben werden
Praktische zentrale Lage
Flexible Flächenoptionen
Ideal für verschiedene Nutzungen
Besichtigung vereinbaren
Besichtigung mit Swiss buchen
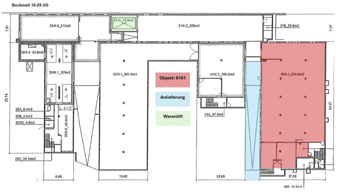
Zentrale Lagerfläche zu vermieten
Nach Vereinbarung vermieten wir eine zentrale Lagerfläche in Burgdorf.
Laden Sie die Dokumentation herunter, um einen Einblick in die Liegenschaft sowie in die verfügbaren Flächen zu erhalten.
Gerne stehen wir Ihnen bei Fragen oder für die Vereinbarung eines Besichtigungstermins zur Verfügung.
Kostenaufstellung
- Nettokosten
- CHF 4’995
- Zusätzliche Kosten
- CHF 535
- Gesamtkosten
- CHF 4’995
Immobiliendetails
- Verfügbar ab
- Nach Vereinbarung



