Werkstatt mieten - Apperechweg, 5015 Erlinsbach SO
Warum Sie diese Immobilie lieben werden
Flexible Nutzungsmöglichkeiten
Zentrale Lage
Sicherer Zugang verfügbar
Besichtigung vereinbaren
Besichtigung buchen
Grosszügige Disporäume an zentraler, ruhiger Lage
Geräumige Disporäume in Erlinsbach zu vermieten!
Wir vermieten per sofort oder nach Vereinbarung diese grosszügigen Disporäume in Erlinsbach.
Der Raum verfügt über ein kleines Fenster, eine Steckdose sowie eine abschliessbare Tür und ist von aussen nicht einsehbar.
Viel Platz – flexibel nutzbar – zentral gelegen!
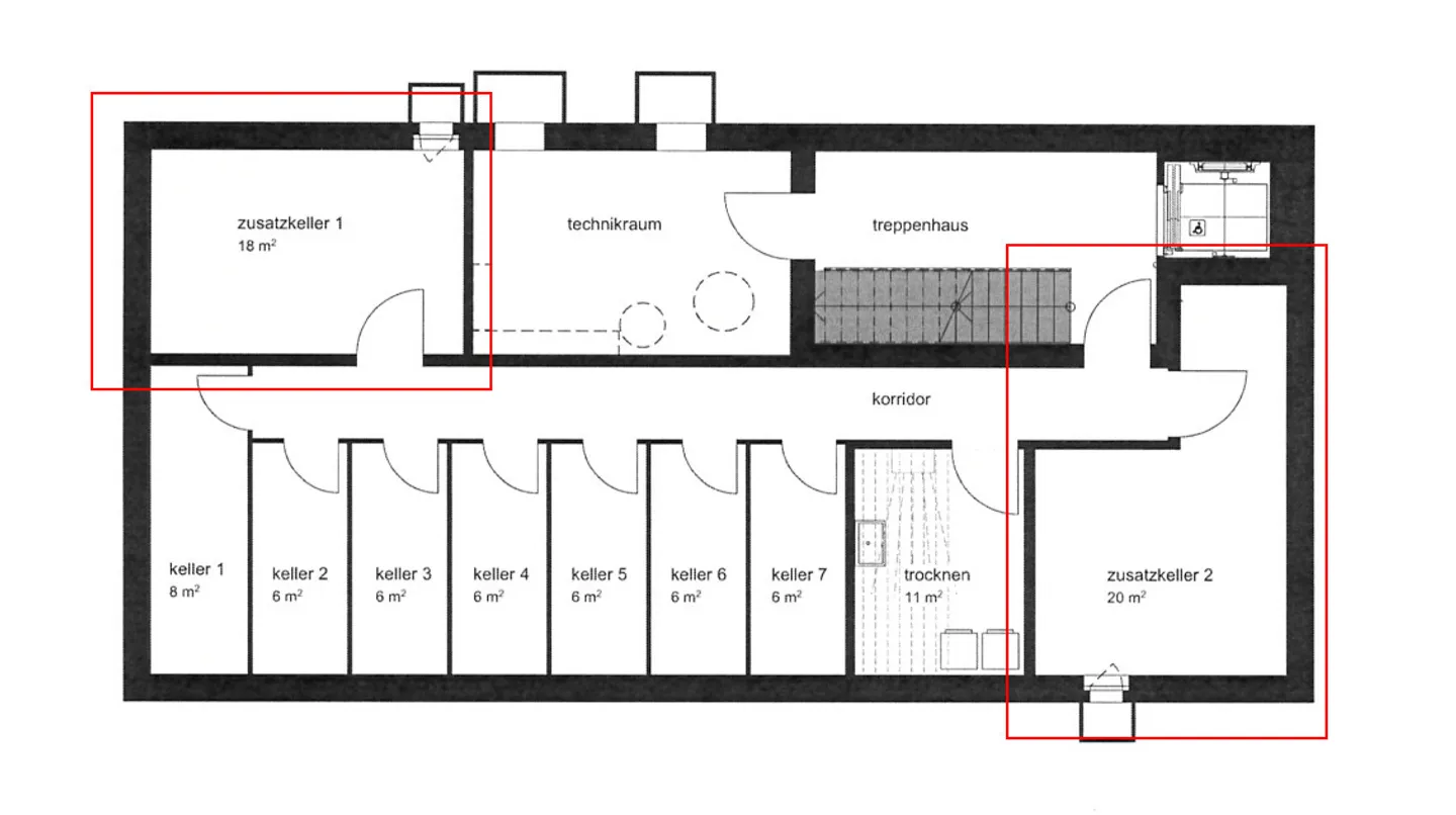
Verfügbare Räume:
Haus 8a | Disporaum Nr. 1 (18m2), Miete Fr. 200.-
Haus 8a | Disporaum Nr. 2 (20 m2), Miete Fr. 300.-
Haus 8b | Disporaum Nr. 1 (18m2), Miete Fr. 200.-
Das Objekt befin...
Immobiliendetails
- Verfügbar ab
- Nach Vereinbarung
- Zimmer
- 1
- Wohnfläche
- 18 m²
- Nutzfläche
- 18 m²



