Bürofläche mieten - Tägerhardstrasse 99, 5430 Wettingen
Warum Sie diese Immobilie lieben werden
Ideal für Therapie oder Büro
Liftzugang und Parkplätze
Kühlende Deckenheizung
Besichtigung vereinbaren
Besichtigung buchen
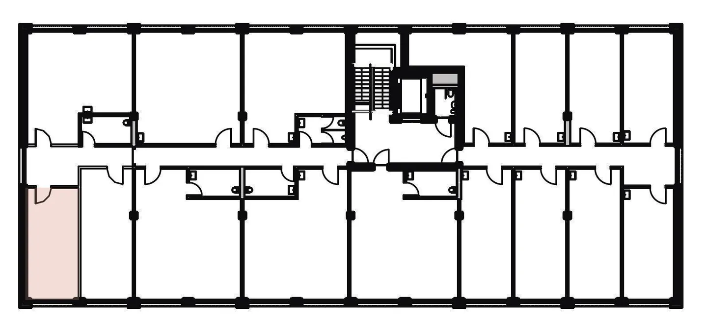
Büro-Studio-Atelier-Therapie : 29m2 / Option: Lager 30m2 mit Z
29m2 Raum in NEUBAU direkt neben COOP-TÄGIPARK
geeignet für -Büro-Gewerbe-Kanzlei-Praxis-Therapie-Schulung-
Lift/Treppenhaus, Ladestationen für PW+EBike, Kundenparkplätze, Deckenheizung inkl. Kühlfunktion im Sommer.
Keller/Archiv/Lager zusätzlich verfügbar.
Mitbenützung WC exklusiv für 3 Parteien.
Einkaufsmarkt TägiPark nebenan.
Weitere Gewerbe- und Lagerflächen, Archivräume können gemietet werden.
Kostenaufstellung
- Nettokosten
- CHF 625
- Zusätzliche Kosten
- CHF 80
- Gesamtkosten
- CHF 625
Immobiliendetails
- Verfügbar ab
- Nach Vereinbarung
- Baujahr
- 2025



