Arztpraxis mieten - Tägerhardstrasse 99, 5430 Wettingen
Warum Sie diese Immobilie lieben werden
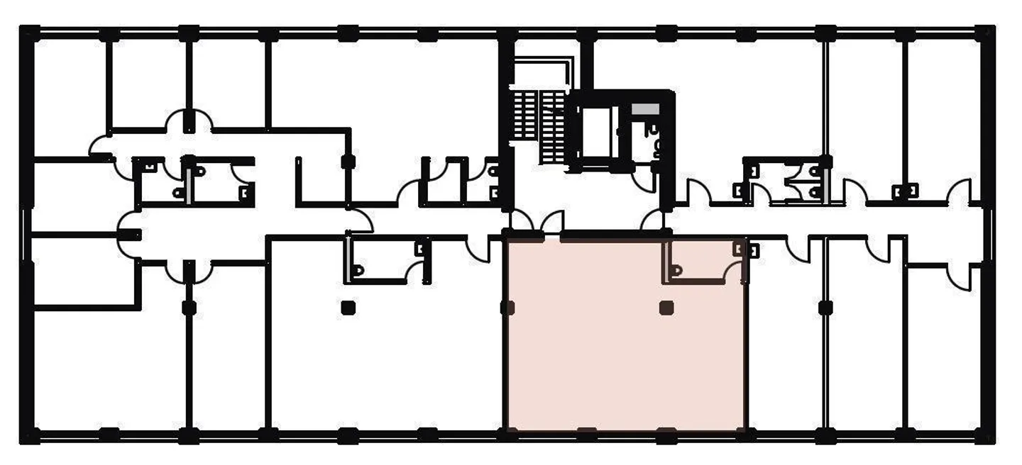
Flexible Raumaufteilung möglich
Eigenes WC vorhanden
Liftzugang und Parkplätze
Besichtigung vereinbaren
Besichtigung buchen
Praxis/büro/kanzlei/notariat, eigenes wc [opt dusche/umkleide]
MODERN - NEUBAU - direkt neben COOP-TÄGIPARK
Mietobjekt mit 102m2 für
> Büro-Notariat-Kanzlei-Praxis-Therapie-Schulung
> Raumeinteilung optional möglich mit z.B. mehrere Büros, Besprechungszimmer, etc
Eigenes WC im Mietobjekt. Optionaler Ausbau mit Dusche und Umkleide möglich.
Kleine Teeküche, ebenfalls optional im Mietobjekt realisierbar.
Lift/Treppenhaus, Ladestationen für PW+EBike, Kundenparkplätze, Deckenheizung inkl. Kühlfunktion im Sommer.
Einkaufsmarkt TägiPark nebenan.
Weitere Gewerbe...
Kostenaufstellung
- Nettokosten
- CHF 2’040
- Zusätzliche Kosten
- CHF 240
- Gesamtkosten
- CHF 2’040
Immobiliendetails
- Verfügbar ab
- Nach Vereinbarung
- Baujahr
- 2025



