Arztpraxis mieten - Tägerhardstrasse 99, 5430 Wettingen
Warum Sie diese Immobilie lieben werden
Flexible Raumeinteilung
Eigenes WC vorhanden
Liftzugang und Parkplätze
Besichtigung vereinbaren
Besichtigung mit Spörri buchen
klimatisiertes Kosmetik/Beauty/Praxis/Studio (mit WC, Opt Dusche)
NEUBAU - direkt neben COOP-TÄGIPARK
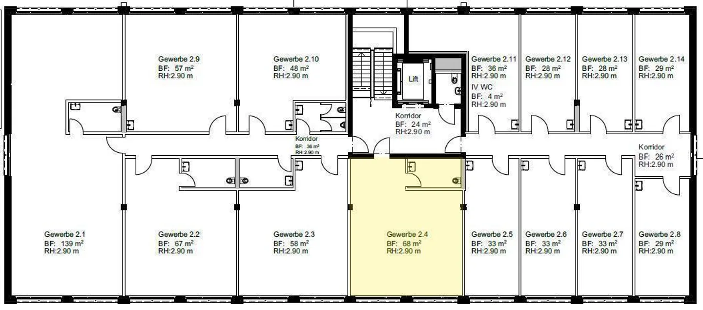
Mietobjekt mit 68m2 > Raumeinteilung optional möglich mit z.B. 2 Behandlungsräumen oder Büros, etc
> aufgrund Novilon-Boden und Wasseranschluss speziell geeignet für Therapie/Praxis/Kosmetik/Beauty
Eigenes WC im Mietobjekt. Optionaler Ausbau mit Dusche und Umkleide möglich.
Kleine Teeküche, ebenfalls optional im Mietobjekt realisierbar.
Lift/Treppenhaus, Ladestationen für PW+EBike, Kundenparkplätze, Deckenheizung inkl. angenehme Kühlfunktion im Sommer.
Eink...
Kostenaufstellung
- Nettokosten
- CHF 1'415
- Zusätzliche Kosten
- CHF 175
- Gesamtkosten
- CHF 1'415
Immobiliendetails
- Verfügbar ab
- Nach Vereinbarung
- Baujahr
- 2025



