Gewerbe mieten - Tägerhardstrasse 99, 5430 Wettingen
Warum Sie diese Immobilie lieben werden
Flexibles Raumlayout
Aufzug vorhanden
Einkaufszentrum in der Nähe
Besichtigung vereinbaren
Besichtigung buchen
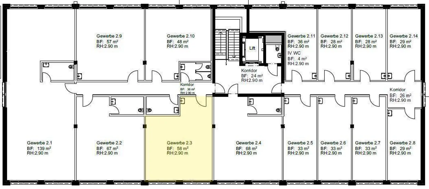
Büro/Kanzlei/Gewerbe mit Lavabo - 58m2 im 2OG in Neubau
NEUBAU - MODERN - direkt neben COOP-TÄGIPARK
Mietobjekt mit 58m2 für
> Büro-Notariat-Kanzlei-Praxis-Therapie-Schulung
> Raumeinteilung optional möglich mit z.B. zwei Büros, Besprechungszimmer, etc
Eigenes Lavabo im Mietobjekt.
Kleine Teeküche, ebenfalls optional im Mietobjekt realisierbar.
Lift/Treppenhaus, Ladestationen für PW+EBike, Kundenparkplätze, Deckenheizung inkl. Kühlfunktion im Sommer.
Einkaufsmarkt TägiPark nebenan.
Weitere Gewerbe- und Lagerflächen, Archivräume können gemietet werd...
Kostenaufstellung
- Nettokosten
- CHF 1’215
- Zusätzliche Kosten
- CHF 150
- Gesamtkosten
- CHF 1’215
Immobiliendetails
- Verfügbar ab
- Nach Vereinbarung
- Baujahr
- 2025



