Gewerbe mieten - Ziegeleihof 9, 6280 Hochdorf
Warum Sie diese Immobilie lieben werden
Top-Lage in Hochdorf
Highspeed Glasfaser-Internet
Flexible Mietmöglichkeiten verfügbar
Besichtigung vereinbaren
Besichtigung mit Jonas buchen
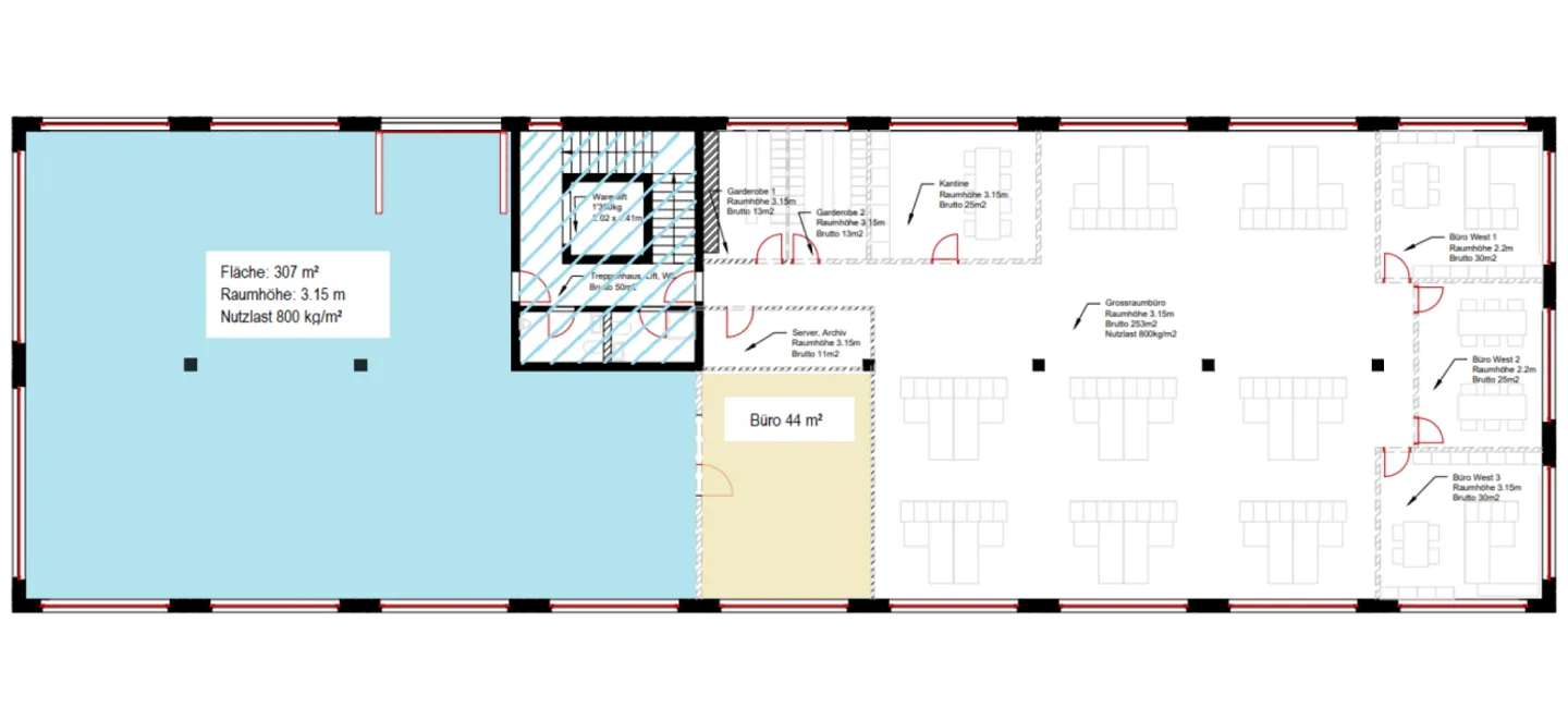
Attraktive gewerbe-/bürofläche (neubau) an belebter hauptstrasse - für erfolgreiche unternehmer
Hochwertige Gewerbemietfläche (Neubau) an Top-Standort
Standort
Hochdorf ist das wirtschaftliche Zentrum im wunderschönen, malerischen Seetal. Vor kurzem noch ein Dorf ist es innert kurzer Zeit zu ein einer aufstreben Kleinstadt herangewachsen. Bis jetzt ist die Gemeinde noch eher unbekannt und deshalb deutlich preisgünstiger als Zug, Zürich, Basel oder die Stadt Luzern. Der Kanton Luzern hat in den letzen Jahren viele attraktive Steuerprivilegien für Unternehmen geschaffen.
Verkehrsanbindung
Verke...
Kostenaufstellung
- Nettokosten
- CHF 4’388
- Zusätzliche Kosten
- CHF 10
- Gesamtkosten
- CHF 4’680
Immobiliendetails
- Verfügbar ab
- Nach Vereinbarung
- Wohnfläche
- 351 m²
- Nutzfläche
- 351 m²




