Bürofläche mieten - Impasse Colombelle 8a, 1218 Le Grand-Saconnex
Warum Sie diese Immobilie lieben werden
Modulare Bürolayouts verfügbar
Direkter Zugang mit Aufzug
Parkplätze zur Miete
Besichtigung vereinbaren
Besichtigung buchen
Furnished Büros in der Nähe des Flughafens
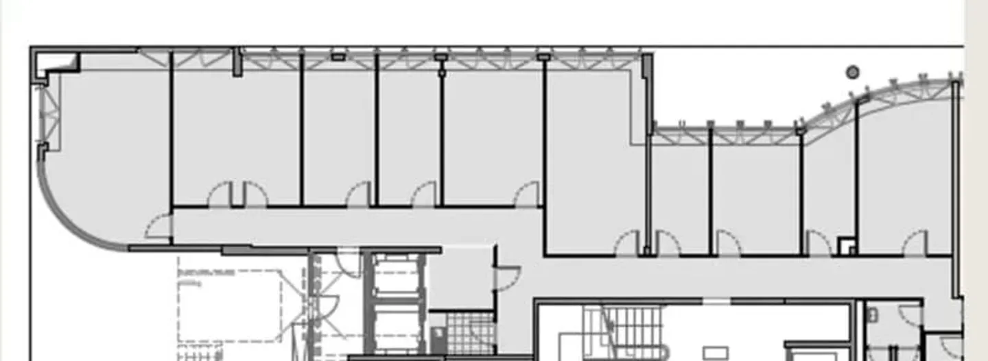
Das Gebäude, ideal gelegen nur wenige Autominuten vom Platz der Nationen entfernt und mit direktem Zugang zur Autobahn A1 in einer ruhigen Umgebung, bietet mehrere modulare Flächen zur Miete an.
Verfügbare Flächen:
- 1. Etage: 481 m² insgesamt, die in mehrere Einheiten aufgeteilt werden können: 240 m², 164 m², 78 m² oder 64 m².
- Oberste Etage: 270 m², teilbar in zwei Einheiten von 114 m² und 152 m².
Ausstattung und Merkmale der Räume:
Direkter Zugang über den Aufzug
Kombination aus geschlossenen Büro...
Immobiliendetails
- Verfügbar ab
- Nach Vereinbarung
- Wohnfläche
- 164 m²



