Bürofläche mieten - Impasse Colombelle 8a, 1218 Le Grand-Saconnex
Warum Sie diese Immobilie lieben werden
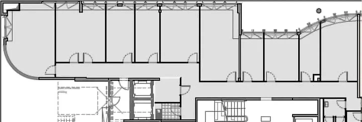
Modulare Büroräume verfügbar
Direkter Zugang über Aufzug
Parkmöglichkeiten vor Ort
Besichtigung vereinbaren
Besichtigung buchen
«Büros in der Nähe des Flughafens»
Das Gebäude, das idealerweise nur wenige Autominuten vom Place des Nations entfernt liegt und von sofortiger Anbindung an die Autobahn A1 sowie eine ruhige Umgebung bietet, bietet mehrere modulare Räume zur Miete.Verfügbare Oberflächen:- 1. Stock: insgesamt 481 m², die in mehrere Grundstücke unterteilt werden können: 240 m², 164 m², 78 m² oder 64 m².- Obergeschoss: 270 m², aufteilbar in zwei Einheiten zu je 114 m² und 152 m².Grundrisse und Merkmale der Räume:Direkter Zugang über den AufzugKombin...
Immobiliendetails
- Verfügbar ab
- Nach Vereinbarung



