Bürofläche mieten - Impasse Colombelle 8a, 1218 Le Grand-Saconnex
Warum Sie diese Immobilie lieben werden
Modulare Büroflächen verfügbar
Direkter Zugang mit Aufzug
Parkplätze zur Miete
Besichtigung vereinbaren
Besichtigung mit Grégoire buchen
Büros in der Nähe des Flughafens
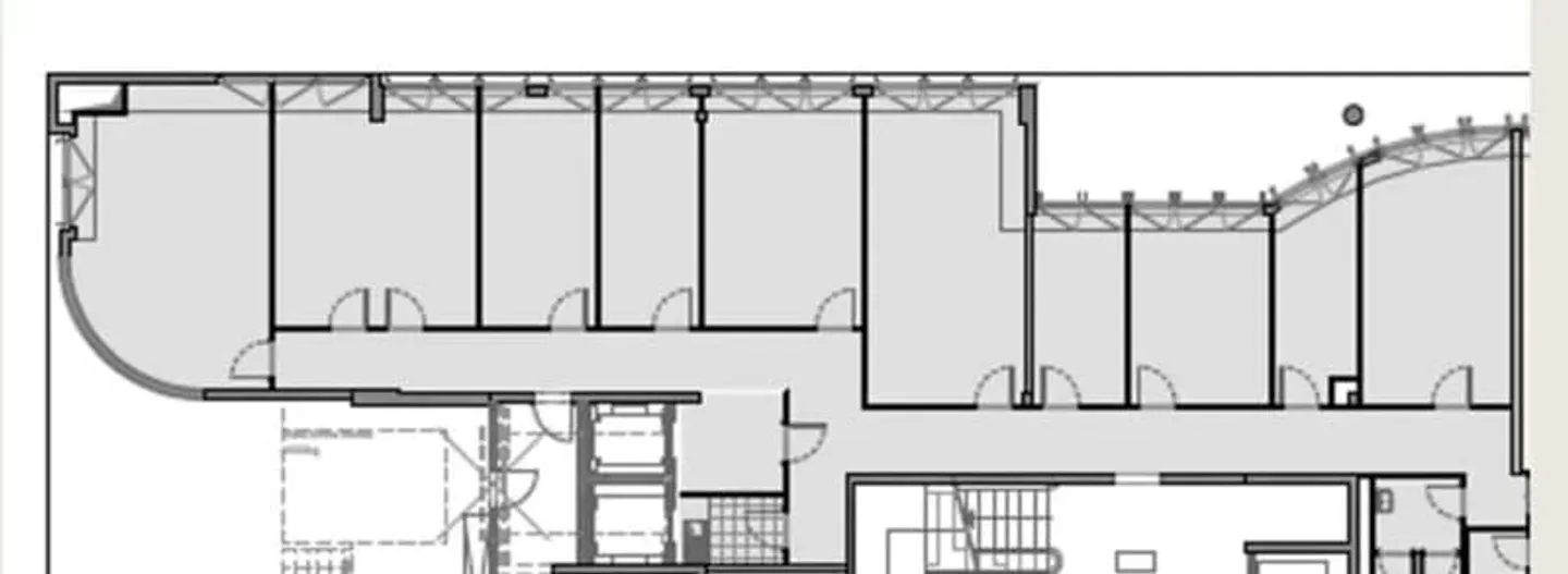
Das Gebäude, ideal gelegen nur wenige Fahrminuten von der Place des Nations entfernt und mit direktem Zugang zur Autobahn A1 in einer ruhigen Umgebung, bietet mehrere modulare Flächen zur Miete.
Verfügbare Flächen:
- 1. Etage: 481 m² insgesamt, die in mehrere Einheiten aufgeteilt werden können: 240 m², 164 m², 78 m² oder 64 m².
- Oberstes Etage: 270 m², unterteilt in zwei Einheiten von 114 m² und 152 m².
Ausstattung und Merkmale der Räume:
Direkter Zugang via Aufzug
Kombination aus geschlossenen...
Immobiliendetails
- Verfügbar ab
- Nach Vereinbarung
- Wohnfläche
- 240 m²
- Nutzfläche
- 240 m²



