Bürofläche mieten - Impasse Colombelle 8a, 1218 Le Grand-Saconnex
Warum Sie diese Immobilie lieben werden
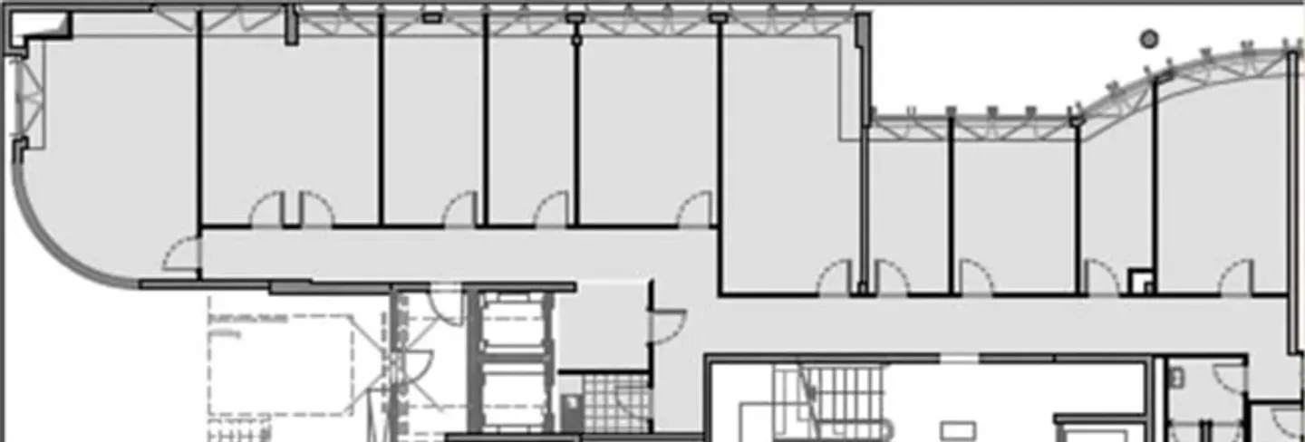
Modulare Bürolayouts
Direkter Zugang mit Aufzug
Integrierte Küchenzeile
Besichtigung vereinbaren
Besichtigung buchen
Büro
Möblierte Büros in der Nähe des Flughafens
Das Gebäude, ideal gelegen nur wenige Autominuten vom Platz der Nationen entfernt und mit direktem Zugang zur Autobahn A1 in einer ruhigen Umgebung, bietet mehrere modulare Flächen zur Miete an.
Verfügbare Flächen:
- 1. Etage: 481 m² insgesamt, die in mehrere Einheiten aufgeteilt werden können: 240 m², 164 m², 78 m² oder 64 m².
- Oberste Etage: 270 m², teilbar in zwei Einheiten von 114 m² und 152 m².
Einrichtungen und Merkmale der Räume:
Direkter Zugang...
Immobiliendetails
- Verfügbar ab
- Nach Vereinbarung



