Bürofläche mieten - 8608 Bubikon
Warum Sie diese Immobilie lieben werden
Ehemaliges Restaurant renoviert
Ruhige und zentrale Lage
Mehrere Aussenparkplätze verfügbar
Besichtigung vereinbaren
Besichtigung mit Frau buchen
Grosszügig an zentraler lage
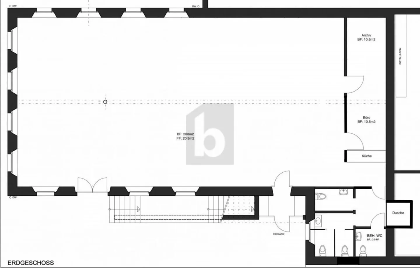
Die angebotene Bürofläche in Bubikon eignet sich perfekt für all jene, die eine zentral gelegene Immobilie direkt am Bahnhof suchen. Trotz der zentralen Lage befindet sie sich in einer ruhigen Umgebung. Das ehemalige Restaurant wird komplett renoviert und umgebaut, was zahlreiche Möglichkeiten für stilles Gewerbe bietet. Ausserdem können mehrere Aussenparkplätze für 50.- zusätzlich angemietet werden.
Dieses BETTERHOMES-Angebot zeichnet sich durch folgende Vorteile aus:
- mehrere Aussenparkplätze ...
Kostenaufstellung
- Nettokosten
- CHF 5’000
- Zusätzliche Kosten
- CHF 150
- Gesamtkosten
- CHF 5’000
Immobiliendetails
- Verfügbar ab
- Nach Vereinbarung
- Zimmer
- 2
- Wohnfläche
- 206 m²
- Nutzfläche
- 206 m²



