1 / 7

Bürofläche mieten - Fadenbrücke 8, 6374 Buochs

CHF 160.-
-

Warum Sie diese Immobilie lieben werden

Flexible Raumaufteilung

Helle und grosszügige Flächen

Modernes Kühlsystem

Besichtigung vereinbaren

Besichtigung mit Herr buchen

Herr Herber Christoph Alfons
K. Bucher Immobilien Treuhand AG

Attraktive büro- und gewerbeflächen in buochs zu vermieten

Vielseitig nutzbare Gewerbeflächen in Buochs – verfügbar ab Frühjahr 2026

Im 2. und 3. Obergeschoss eines neuen Gewerbegebäudes in Buochs vermieten wir ab Frühjahr 2026 attraktive Flächen im Rohbau.

Die Flächen bieten viel Gestaltungsfreiraum und können individuell an Ihre Bedürfnisse angepasst werden – ideal für Büro, Praxis oder andere gewerbliche Nutzungen.

Verfügbare Flächen:

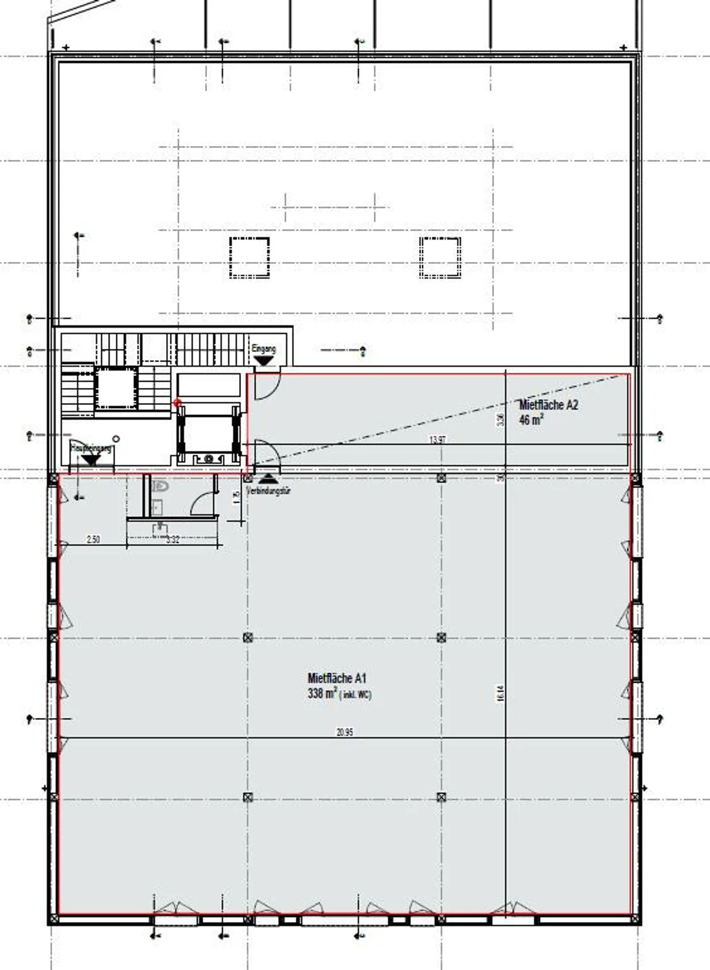
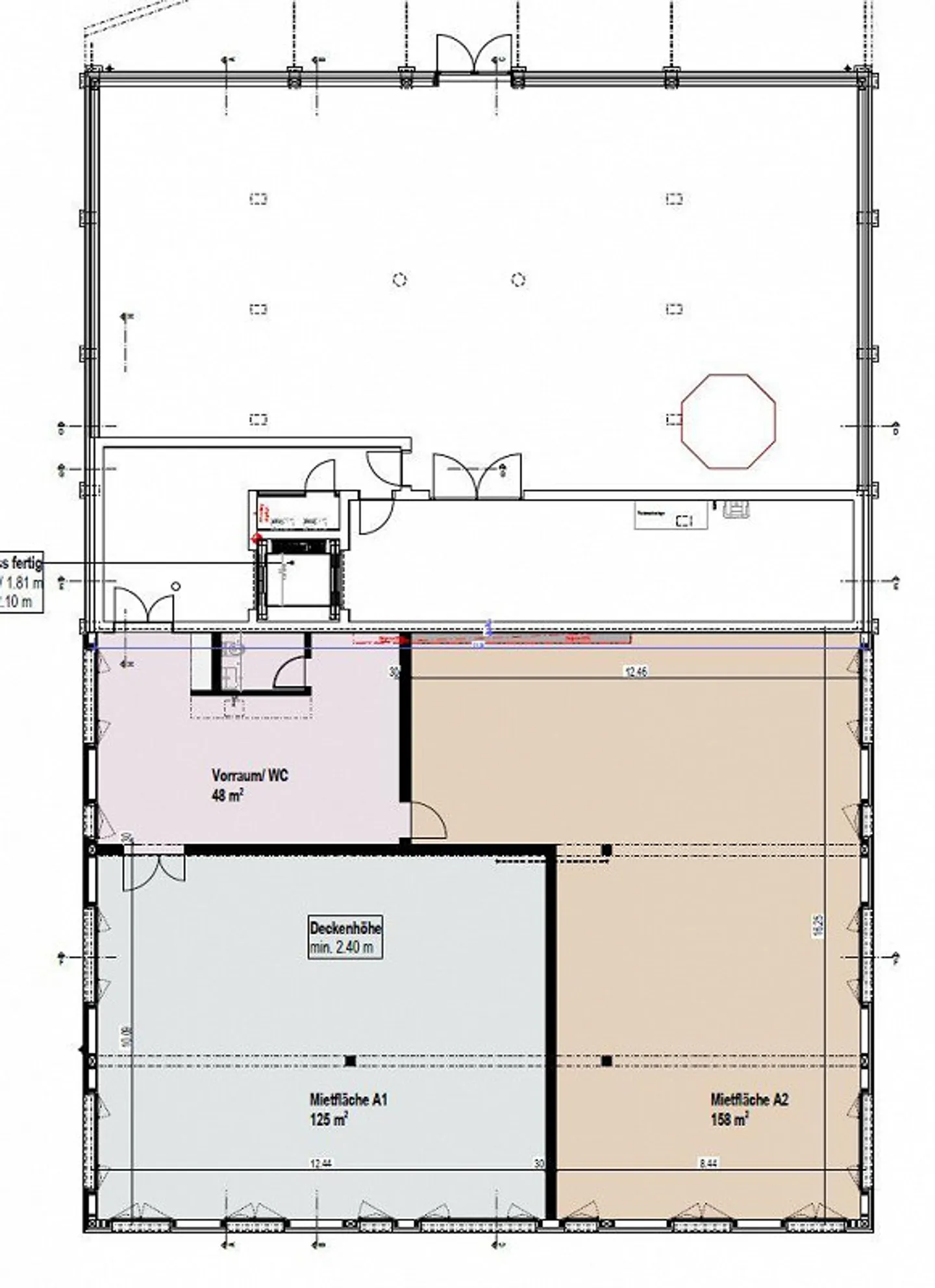
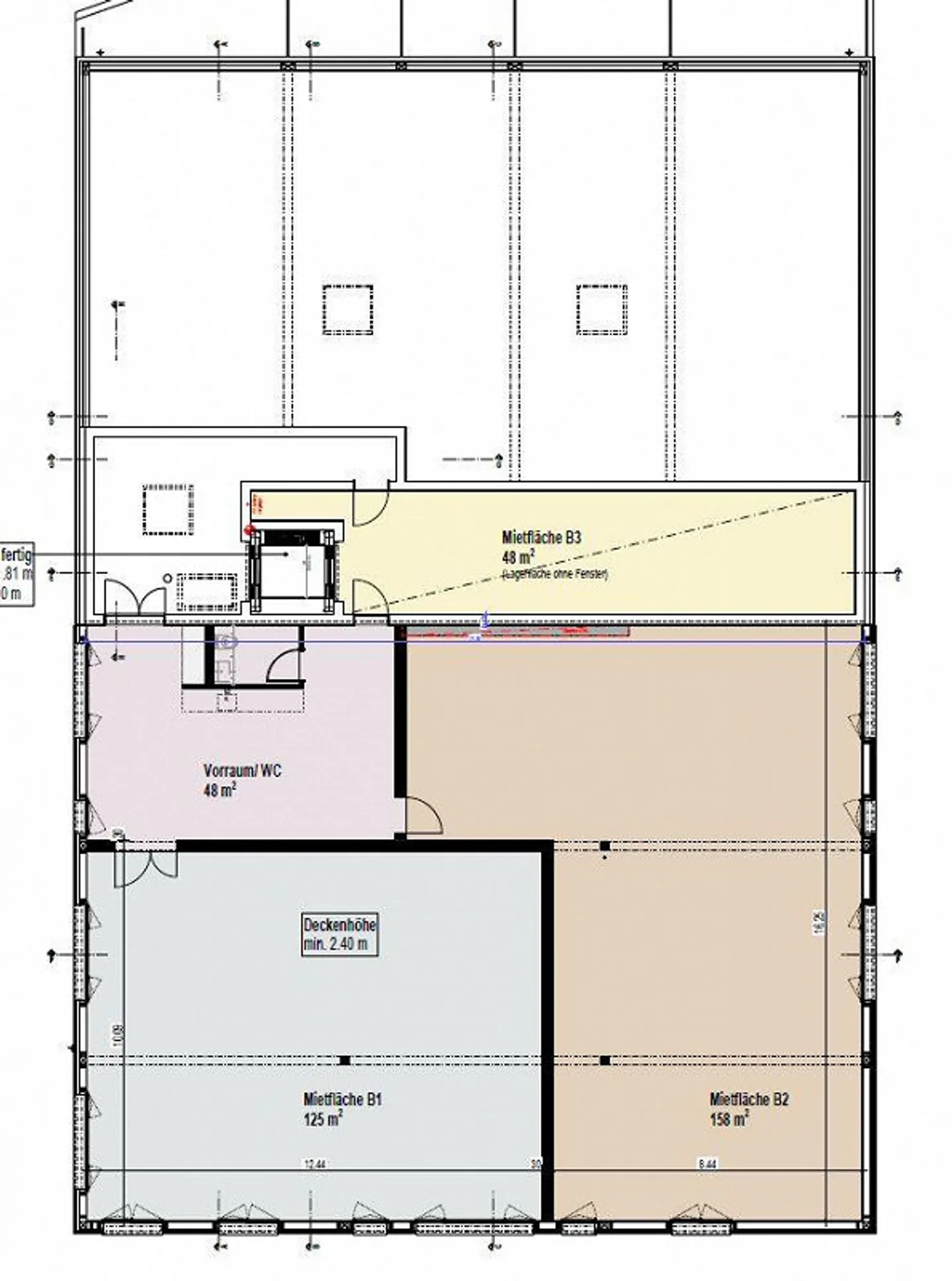
2. Obergeschoss: 338 m² (inkl. WC)

3. Obergeschoss: 338 m² (inkl. WC)

3. Obergeschoss: 46 m² (ohne Fenster)

Es gibt...

Immobiliendetails

Verfügbar ab
Nach Vereinbarung
Baujahr
2025

Eigenschaften

Lift
Neubau

Interessante Orte in der Nähe

Öffentlicher Verkehr - 0.2 km
Autobahn - 1.6 km

Agentur

K. Bucher Immobilien Treuhand AG
Adresse:Aawasserstrasse 2, 6370, Oberdorf
Herr Herber Christoph Alfons
Ref: 0.0.6057
Online seit
27/08/2025
vor 2 Monaten

Standort

Fadenbrücke 8, 6374 Buochs

Quellen