Gewerbe mieten - Egolzwilerstrasse 8, 6244 Nebikon
Warum Sie diese Immobilie lieben werden
Erstklassige Lage am Bahnhof
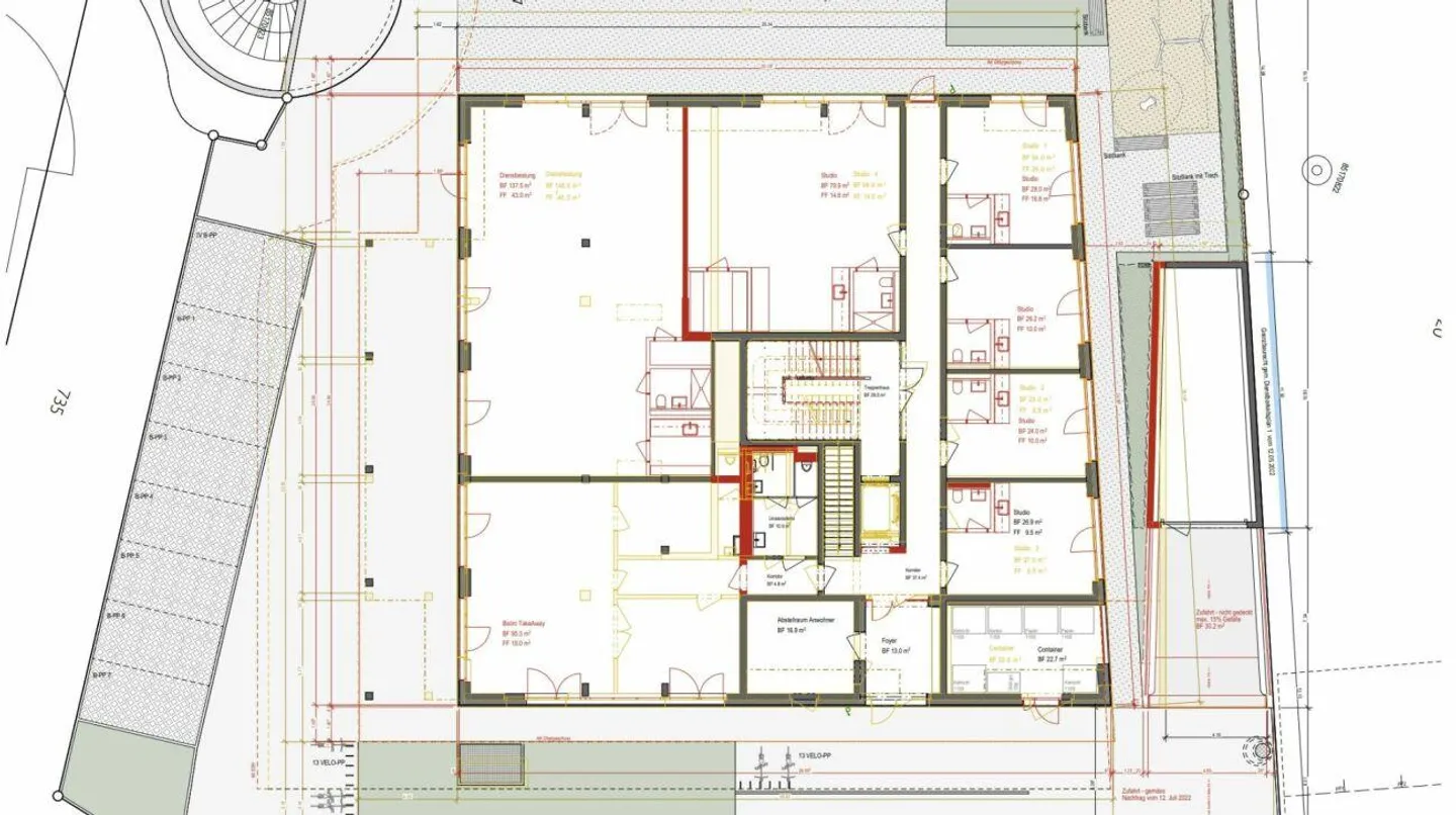
Flexible Studio-Optionen
Hohe Sichtbarkeit für Ihr Gewerbe
Besichtigung vereinbaren
Besichtigung mit Häfliger buchen
Ihr gewerbe mit anschluss - durchdacht und vernetzt
Zentral und modern arbeiten
Ihre Lage-Vorteile
Nebikon liegt im unteren Luzerner Wiggertal. Die Gemeinde ist eine vielfältige und lebendige Region. Diverse Einkaufsmöglichkeiten für den täglichen Bedarf befinden sich vor Ort. Nebikon liegt verkehrstechnisch im Herzen der Schweiz; der SBB-Bahnhof und der nahegelegene Autobahnanschluss versprechen gute Anschlüsse in die ganze Schweiz.
So arbeiten Sie
Von der alten Möbelfabrik zum modernen Wohn- und Geschäftshaus. Mitten in Nebikon entsteht ein Mehrfam...
Immobiliendetails
- Verfügbar ab
- Nach Vereinbarung
- Baujahr
- 2026



