Gewerbe mieten - Route Du Petit-Moncor 7a, 1752 Villars-sur-Glâne
Warum Sie diese Immobilie lieben werden
Schneller Zugang zur A12
Ladebereich mit Rampe
Optimierte Lagerkapazität
Besichtigung vereinbaren
Besichtigung buchen
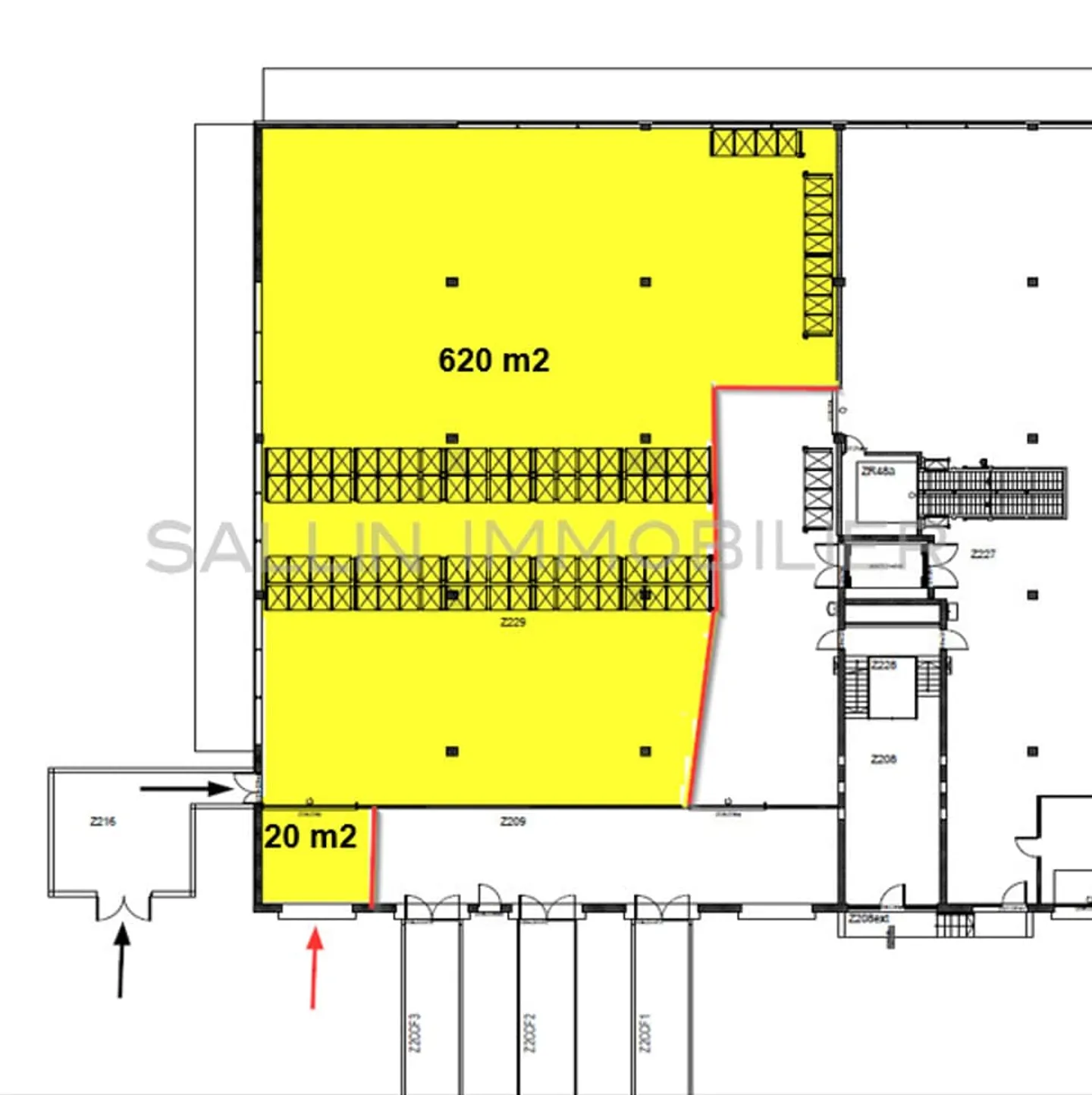
Lager/Halle von ca. 763 m², Ladebereich mit Laderampe
Gelegen im strategischen Industriegebiet von Villars-sur-Glâne, bietet es schnellen Zugang zur Autobahn A12 sowie zu öffentlichen Verkehrsmitteln.
LAGE
2 Schritte entfernt
- Bushaltestelle
- Restaurants
- Einkaufszentrum
1-2 Min. mit dem Auto
- Anschluss A12
5-7 Min. mit dem Auto
- Bahnhof Fribourg
- Stadtzentrum
VERTEILUNG
Logistiklager mit einem Ladebereich mit einer externen Laderampe von ca. 20.00 m².
Der Raum ist mit Metallregalen ausgestattet, die eine Kapazität von ca. 200 Paletten bieten ...
Immobiliendetails
- Verfügbar ab
- Nach Vereinbarung



