Geschäft mieten - Stimmerstrasse 74, 8200 Schaffhausen
Preis auf Anfrage
-
Warum Sie diese Immobilie lieben werden
Flexible Nutzungsmöglichkeiten
Lieferrampe vorhanden
Gut mit ÖV erreichbar
Besichtigung vereinbaren
Besichtigung buchen
Wincasa SA - Siège
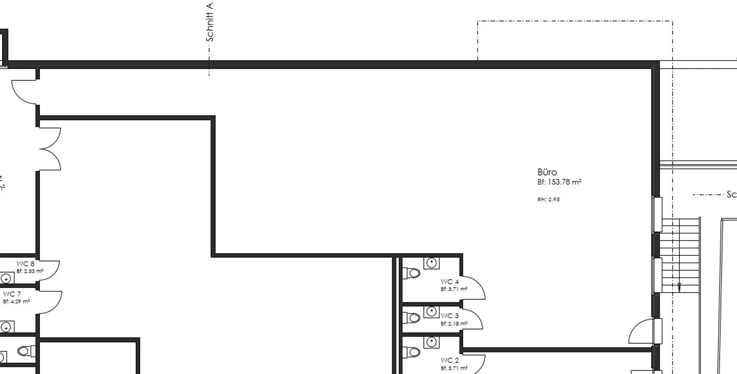
«160m2 büro- und gewerberäumlichkeiten warten auf sie!»
- Die Räumlichkeiten können flexibel genutzt werden
- Rampe für Anlieferung vorhanden
- 2 separate WC's
- Parkplätze können dazugemietet werden 65 Fr./mtl.
- Stadtnahe Lage
- Gut mit öffentlichen Verkehrsmittel zu erreichen
- Geeignet für ein stilles Gewerbe
Immobiliendetails
- Verfügbar ab
- Nach Vereinbarung
Agentur
Wincasa SA - Siège
Online seit
26/06/2025
vor 4 Monaten
Standort
Stimmerstrasse 74, 8200 Schaffhausen



