Bürofläche mieten - Hermetschloostrasse 73, 8048 Zürich
Warum Sie diese Immobilie lieben werden
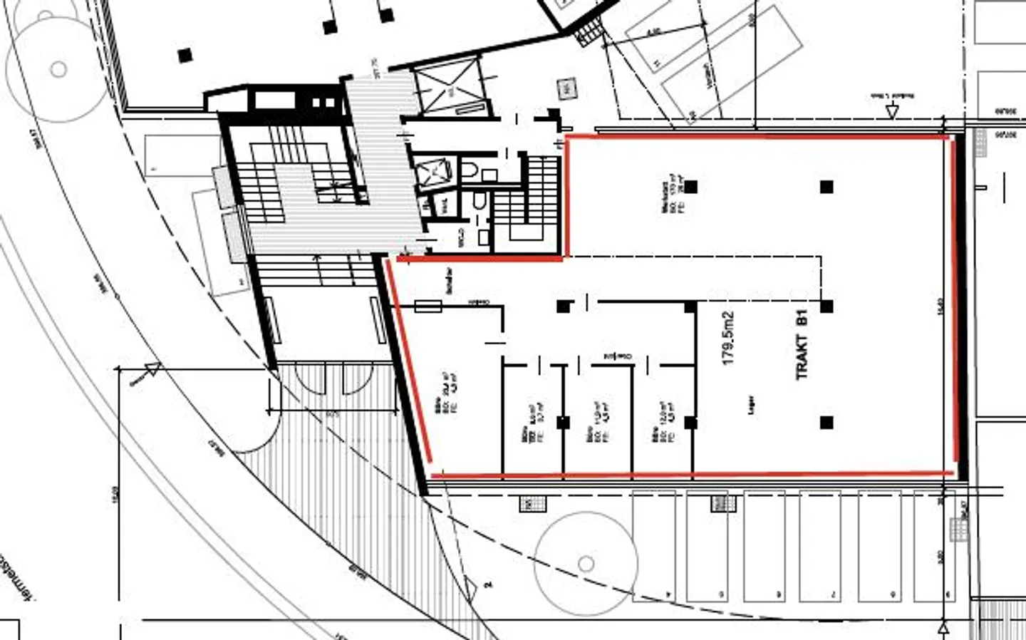
179 m² Geschäftsfläche
Zugängliche WC-Anlagen
In der Nähe von ÖV
Besichtigung vereinbaren
Besichtigung mit Gessler buchen
Wir vermieten nach Vereinbarung dieses helle, lichtdurchflutete und gut gelegene Büro im Erdgeschoss an der Hermetschloostrasse 75 in 8048 Zürich.
Das Mietobjekt bietet folgende Annehmlichkeiten:
- Geschäftsfläche von 179 m2
- WC-Anlagen sind vom Treppenhaus zugänglich
- Stromanschluss vorhanden
- Mitbenützung Personen- und Warenlift
Der Bahnhof Altstetten und weitere Verkehrsanbindungen (öffentlicher Verkehr; Bus/Tram & Autobahnanschluss) sowie diverse Einkaufs- und Freizeitmöglichkeiten sind i...
Kostenaufstellung
- Nettokosten
- CHF 3'283
- Zusätzliche Kosten
- CHF 299
- Gesamtkosten
- CHF 3'283
Immobiliendetails
- Verfügbar ab
- Nach Vereinbarung
- Baujahr
- 1965
- Wohnfläche
- 179 m²
- Nutzfläche
- 179 m²



