Kaufhaus mieten - 6855 Stabio
Warum Sie diese Immobilie lieben werden
Moderne geothermische Heizung
Flexible und modulierbare Räume
Strategische Lage nahe Italien
Besichtigung vereinbaren
Besichtigung mit Ambra buchen
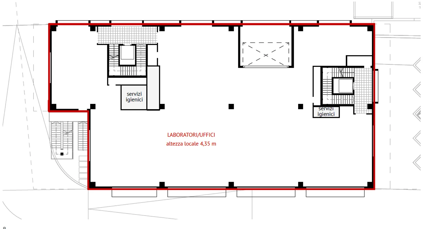
STABIO – STABILES INDUSTRIELLES / KOMMERCIELLES NEUBAU
In einem Projekt der neuen Konstruktion eine ideale Lösung für Unternehmen, die Sichtbarkeit, Funktionalität und effiziente Verbindungen in einem ständig sich entwickelnden Gebiet suchen.
Wo: Strategische und dynamische Zone, direkt an der Grenze zu Italien, ideal für kommerzielle, industrielle oder logistische Aktivitäten. Gute Verbindungen zur Autobahn Lugano–Mailand und zum kantonalen Netz, nahe dem Bahnhof Stabio. Das Gebiet ist mit modernen Infrastrukturen und aktiven Unternehmen ausgestatte...
Immobiliendetails
- Verfügbar ab
- Nach Vereinbarung
- Zimmer
- 8.5
- Wohnfläche
- 2600 m²



