Bürofläche mieten - 6850 Mendrisio
Warum Sie diese Immobilie lieben werden
Renoviertes Industriegebiet
Teilbare Fläche bis 700 m2
Ausgezeichnete Verkehrsanbindung
Besichtigung vereinbaren
Besichtigung mit Geiersberger buchen
Mendrisiotto - 10 minuten von der grenze zu chiasso - büroräume /au...
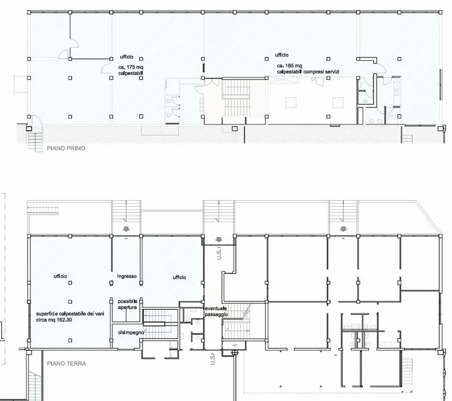
"Industrie/Gewerbe in Mendrisio-Rancate zu vermieten " 10 Minuten von der Grenze zu Chiasso- Büroräume / Ausstellungsräume / Gewerbeflächen zu vermieten völlig Renoviert, Gesamtfläche von ca. 700 m2 teilbar + Parkplätze, in Industriegebiet.
Untergeschoss
• 113 m2
• WC x 1
Erdgeschoß
• 163 m2
• WC x 2
1. Stock
• 175 m2
• WC x 2
• 185 m2
• WC x 2
SFr./m2 155.–/165.– + NK
Mendrisio ist eine Schweizer Gemeinde im Kanton Tessin, Hauptstadt des gleichnamigen Bezirks,mit Stadtstatus und liegt im Süden...
Immobiliendetails
- Verfügbar ab
- Nach Vereinbarung
- Grundstücksfläche
- 163 m²



