1 / 10

Bürofläche mieten - 6825 Capolago

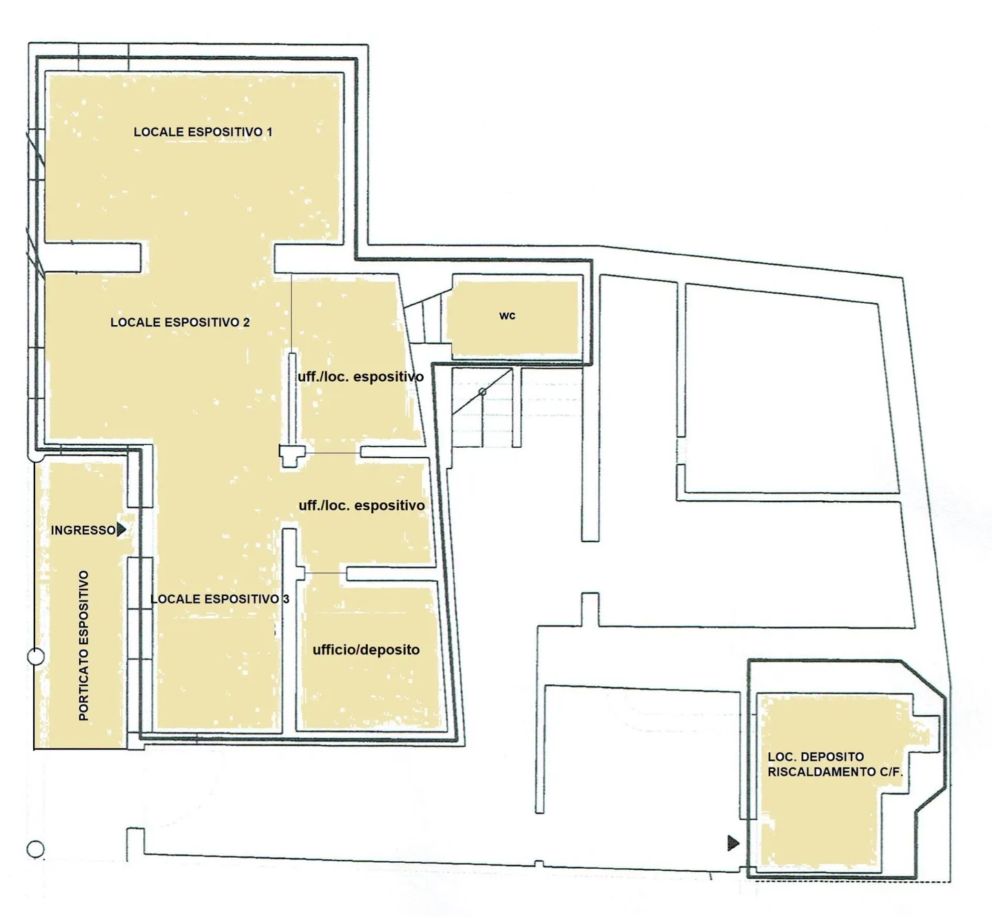
102 m² • Erdgeschoss
CHF 1’370
CHF 161 m² / year

Warum Sie diese Immobilie lieben werden

Hervorragende Straßenansicht

Geräumige Fläche von 102 m²

Großer öffentlicher Parkplatz in der Nähe

Besichtigung vereinbaren

Besichtigung buchen

Premium Immobiliare Sagl
Diese Beschreibung wurde automatisch von Italienisch übersetzt.

Gewerbefläche/büro/geschäft

Nur wenige Minuten von Mendrisio entfernt, genießt diese geräumige Immobilie eine privilegierte Lage mit straßenseitigen Fenstern an einer der Hauptverkehrsstraßen.

Die Immobilie befindet sich in Capolago, einem strategischen Standort mit einfachem Zugang von Mendrisio und den umliegenden Städten. Ihre Lage an der Hauptstraße gewährleistet eine außergewöhnliche Sichtbarkeit.

Die Kunden werden den großzügigen öffentlichen Parkplatz direkt gegenüber dem Geschäft zu schätzen wissen, was Ihr Unternehm...

Immobiliendetails

Verfügbar ab
01.01.1970
Wohnfläche
102

Eigenschaften

Parkplätze
Unverbaubare Aussicht

Agentur

Premium Immobiliare Sagl
Ref: 118.1662987.17084220-ae80-11f0-89d7-069ae14c7a06
Online seit
13/08/2025
vor 2 Monaten

Standort

6825 Capolago

Quellen