Bürofläche mieten - Rheinstrasse 63a, 7012 Felsberg
Warum Sie diese Immobilie lieben werden
Flexible Büroaufteilungen
Sofort bezugsbereite Räume
Nachhaltige Energieversorgung
Besichtigung vereinbaren
Besichtigung mit Niculin buchen
Erstvermietung Gewerbepark Felsberg
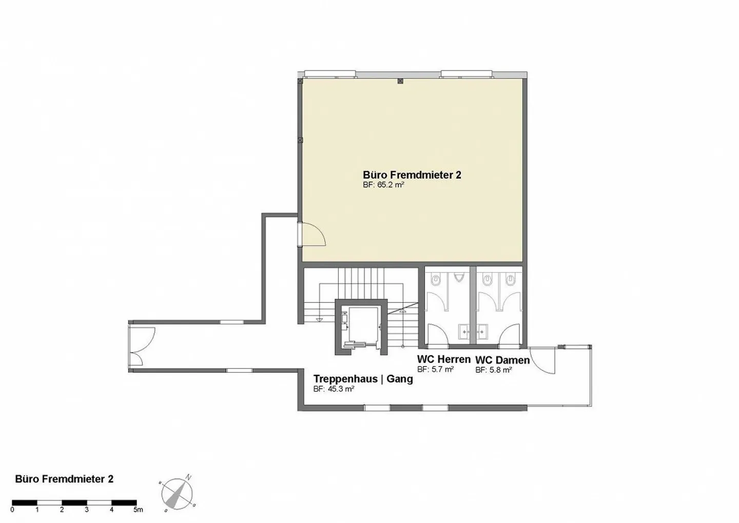
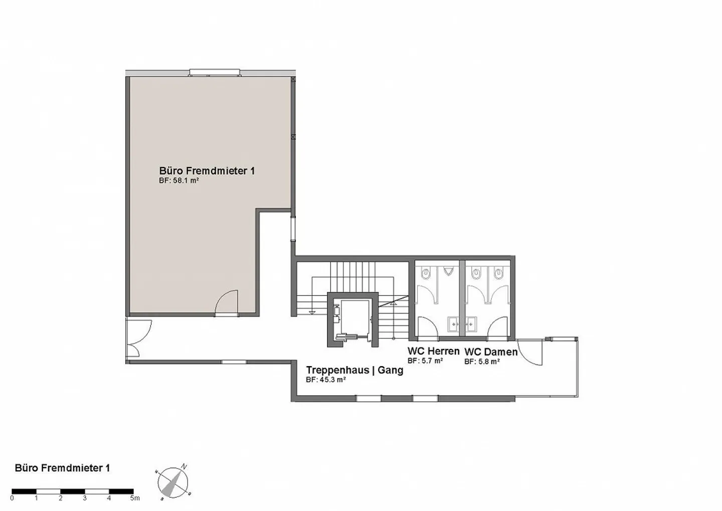
Sichern Sie sich jetzt Ihre modernen Büroräumlichkeiten im attraktiven Neubau an der Rheinstrasse 63a in Felsberg mit Bezugstermin 01.04.2026. Die Erstvermietung bietet flexible Flächen von 58.10 m2 bis 130.90 m2 , die je nach Bedarf zusammengelegt werden können.
Ihre Vorteile auf einen Blick:
- Flexibel einteilbare Büroflächen: von 58.10 m2 bis 130.9 m2
- Neubau mit vorhandenem Grundausbau: sofort bezugsbereit
- Grundausbau der Büroräumlichkeiten: Kugelgarnteppich, Bodenheizung, elektrische Verbu...
Kostenaufstellung
- Nettokosten
- CHF 800
- Zusätzliche Kosten
- CHF 135
- Gesamtkosten
- CHF 800
Immobiliendetails
- Verfügbar ab
- Nach Vereinbarung
- Baujahr
- 2026



