Bürofläche mieten - Rheinstrasse 63a, 7012 Felsberg
Warum Sie diese Immobilie lieben werden
Flexible Büroaufteilungen
Sofort bezugsbereite Räume
Nachhaltige Energieversorgung
Besichtigung vereinbaren
Besichtigung mit Niculin buchen
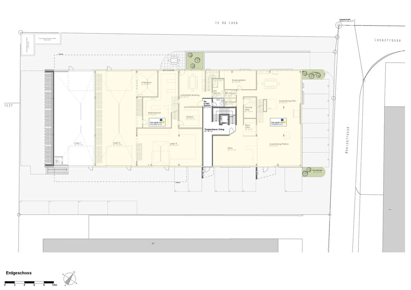
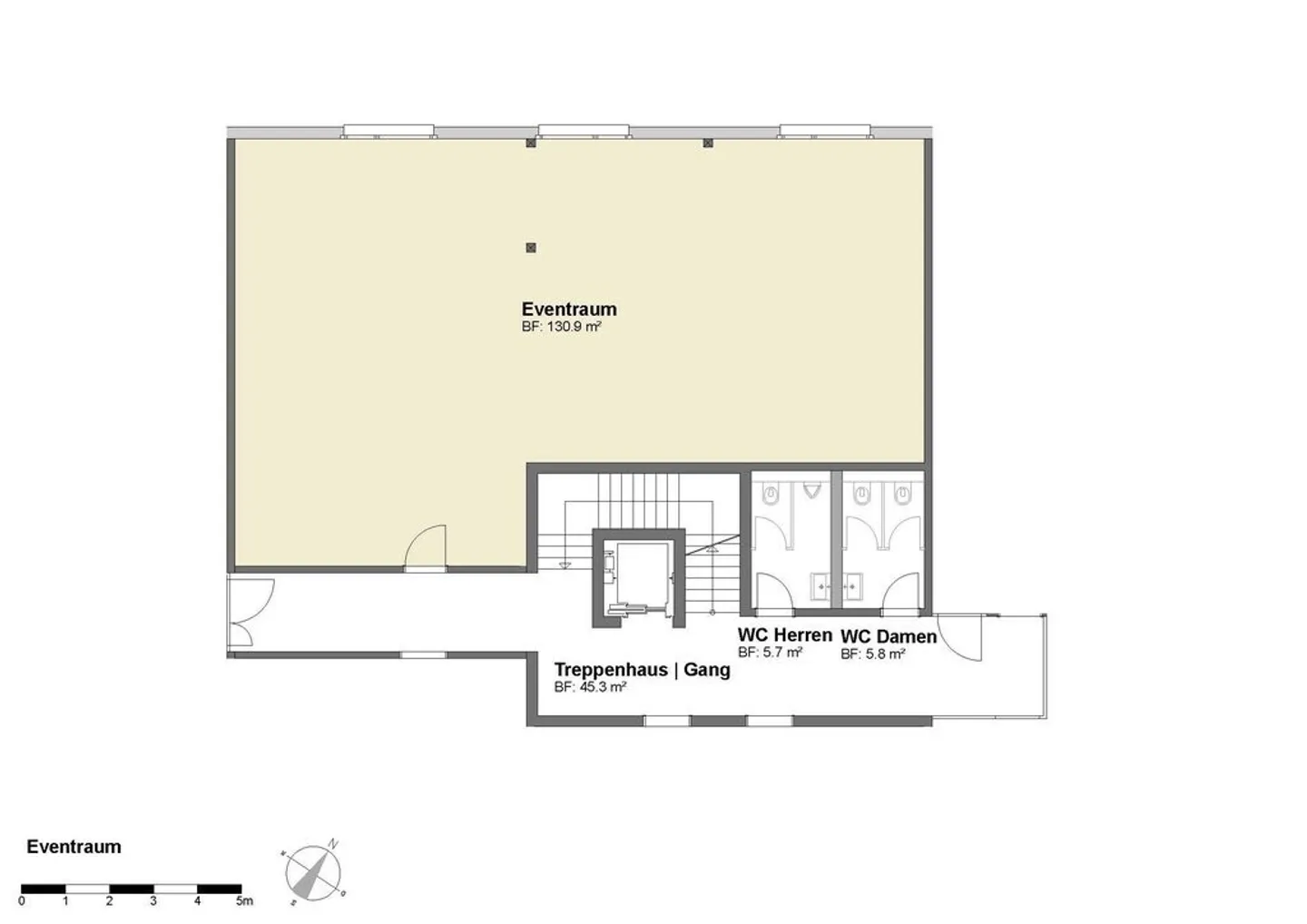
Erstvermietung gewerbepark felsberg
Sichern Sie sich jetzt Ihre modernen Büroräumlichkeiten im attraktiven Neubau an der Rheinstrasse 63a in Felsberg mit Bezugstermin 01.04.2026. Die Erstvermietung bietet flexible Flächen von 24.20 m2 bis 130.90 m2 , die je nach Bedarf zusammengelegt werden können.
Ihre Vorteile auf einen Blick:
* Flexibel einteilbare Büroflächen: von 24.20 m2 bis 130.9 m2
* Neubau mit vorhandenem Grundausbau : sofort bezugsbereit
* Grundausbau der Büroräumlichkeiten: Kugelgarnteppich, Bodenheizung, elektrische Ver...
Kostenaufstellung
- Nettokosten
- CHF 1’795
- Zusätzliche Kosten
- CHF 305
- Gesamtkosten
- CHF 1’795
Immobiliendetails
- Verfügbar ab
- 01.04.2026
- Baujahr
- 2026
- Wohnfläche
- 131 m²
- Nutzfläche
- 131 m²



