Gewerbe mieten - 6330 Cham
Warum Sie diese Immobilie lieben werden
Direkter Zugang zum Warenlift
Ausgezeichnete ÖV-Anbindung
Einkaufsmöglichkeiten in der Nähe
Besichtigung vereinbaren
Besichtigung mit Cornelia buchen
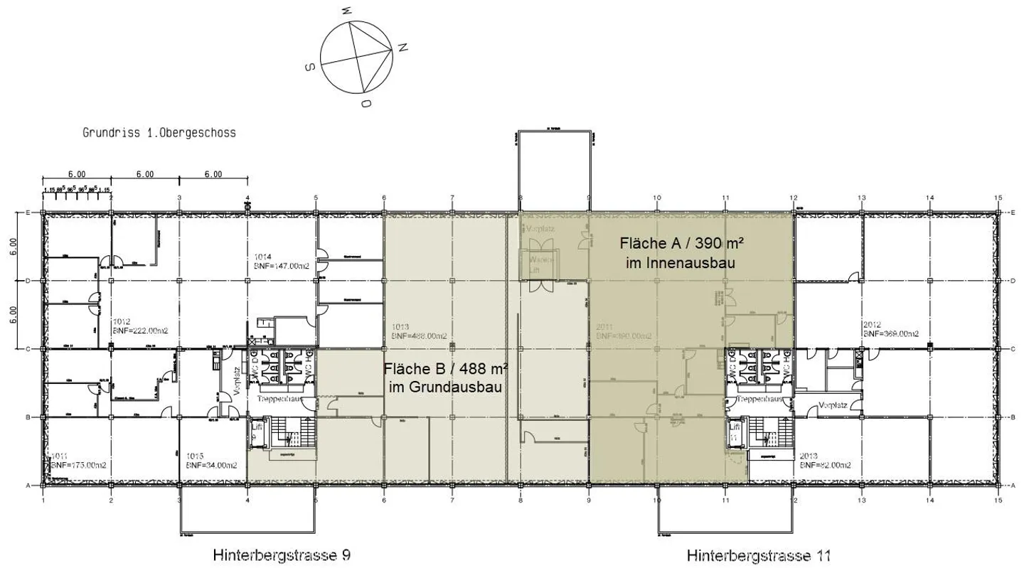
878 m² Geschäftsfläche mit Zugang zum Warenlift unterteilbar in 390...
Das Büro- und Geschäftshaus liegt im Gebiet Städtler Allmend in Cham. Die verkehrstechnische Erschliessung für den öffentlichen, wie auch den Individualverkehr ist ausgezeichnet. In der Umgebung sind diverse Verpflegungs- und Einkaufsmöglichkeiten vorhanden, welche auch bestens zu Fuss erreicht werden können.
Ihre Vorteile auf einen Blick
Die Geschäftsflächen können einzeln gemietet werden:
390 m² mit bestehendem Innenausbau Sommer 2020 (auf dem nachfolgenden Plan grün hinterlegt)
und/oder
488 m² ...
Immobiliendetails
- Verfügbar ab
- Nach Vereinbarung
- Baujahr
- 1981
- Renovierungsjahr
- 2010



