Bürofläche mieten - 6300 Zug
Warum Sie diese Immobilie lieben werden
Modernes Raumkonzept mit Schaufenster
Gut erschlossene Lage
Besucherparkplätze vorhanden
Besichtigung vereinbaren
Besichtigung mit Julia buchen
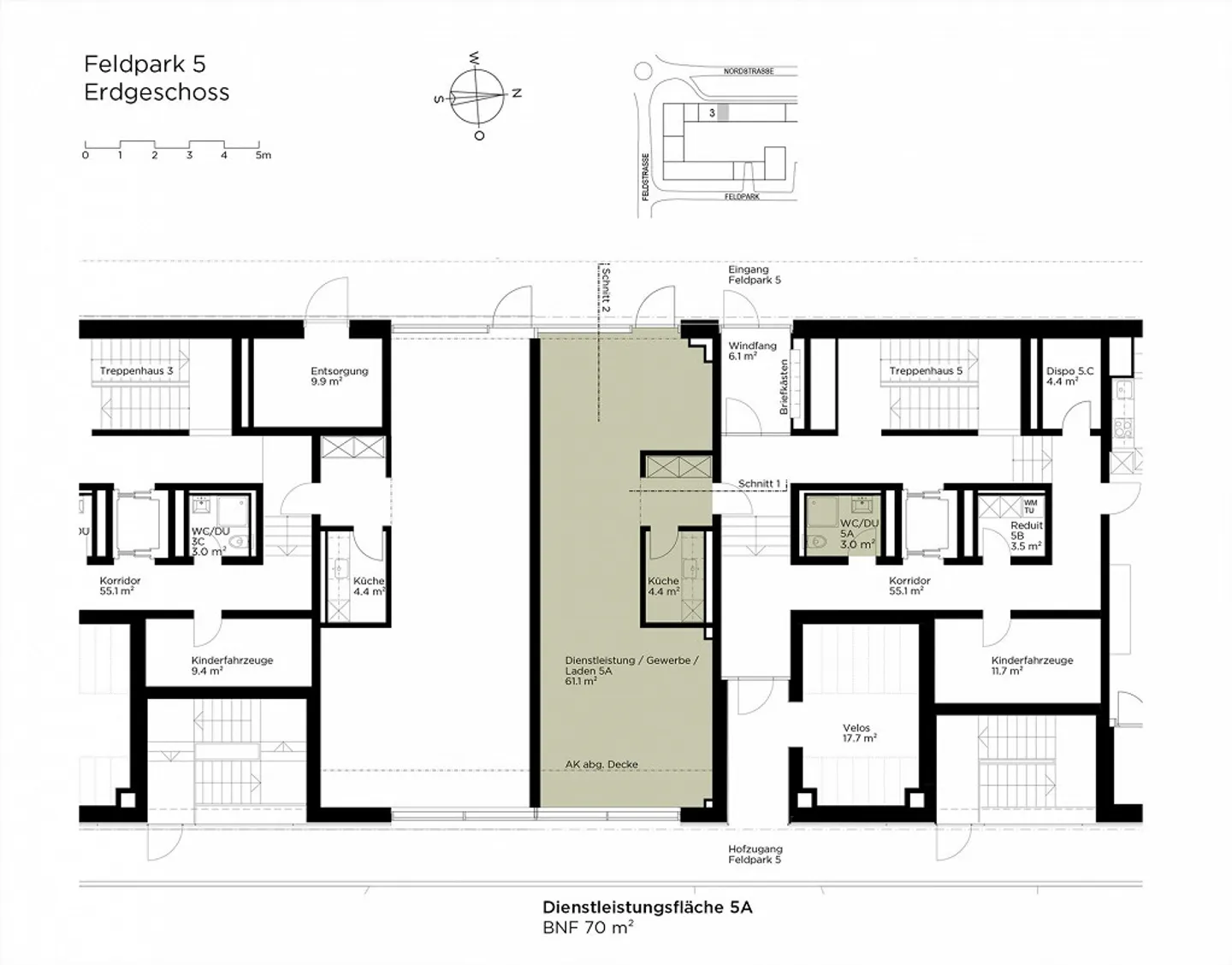
Dienstleistungsfläche an attraktiver Lage
Der Feldpark ist ein lebendiges Stadtquartier mit angrenzendem Erholungsgebiet. Ein Quartier, in dem man wohnt, arbeitet und sich trifft.
Ihre Vorteile auf einen Blick
Repräsentative Fläche mit SchaufensterGut erschlossene LageBezugsbereite Fläche mit modernem AusbauBesucherparkplätze vor dem Gebäude
Angebot
70 m² Nutzfläche im Erdgeschoss15.2 m² Disporaum im 2. Untergeschoss2 Parkplätze in der Autoeinstellhalle
Das Angebot kann nur als Gesamtpaket mit allen aufgeführten Objekten gemietet werden. D...
Immobiliendetails
- Verfügbar ab
- Nach Vereinbarung
- Baujahr
- 2014



