Bürofläche mieten - Rue Du Rhône 62, 1204 Genève
Warum Sie diese Immobilie lieben werden
Prestigeträchtiges renoviertes Gebäude
Helle Innenräume mit Höfen
Breeam-zertifiziert für Nachhaltigkeit
Besichtigung vereinbaren
Besichtigung mit Philipps buchen
Büros zur Miete, renoviert, Genf Stadtzentrum
Zur Miete, Rue du Rhône, Büroflächen in einem prestigeträchtigen und vollständig renovierten Gebäude.
Das Emblem-Gebäude, ideal gelegen, Rue du Rhône 62, verfügt über die folgenden Merkmale:
https://emblem-rhone62.ch/
Renovierte Immobilie mit neuer Fassade
Breeam-Zertifizierung
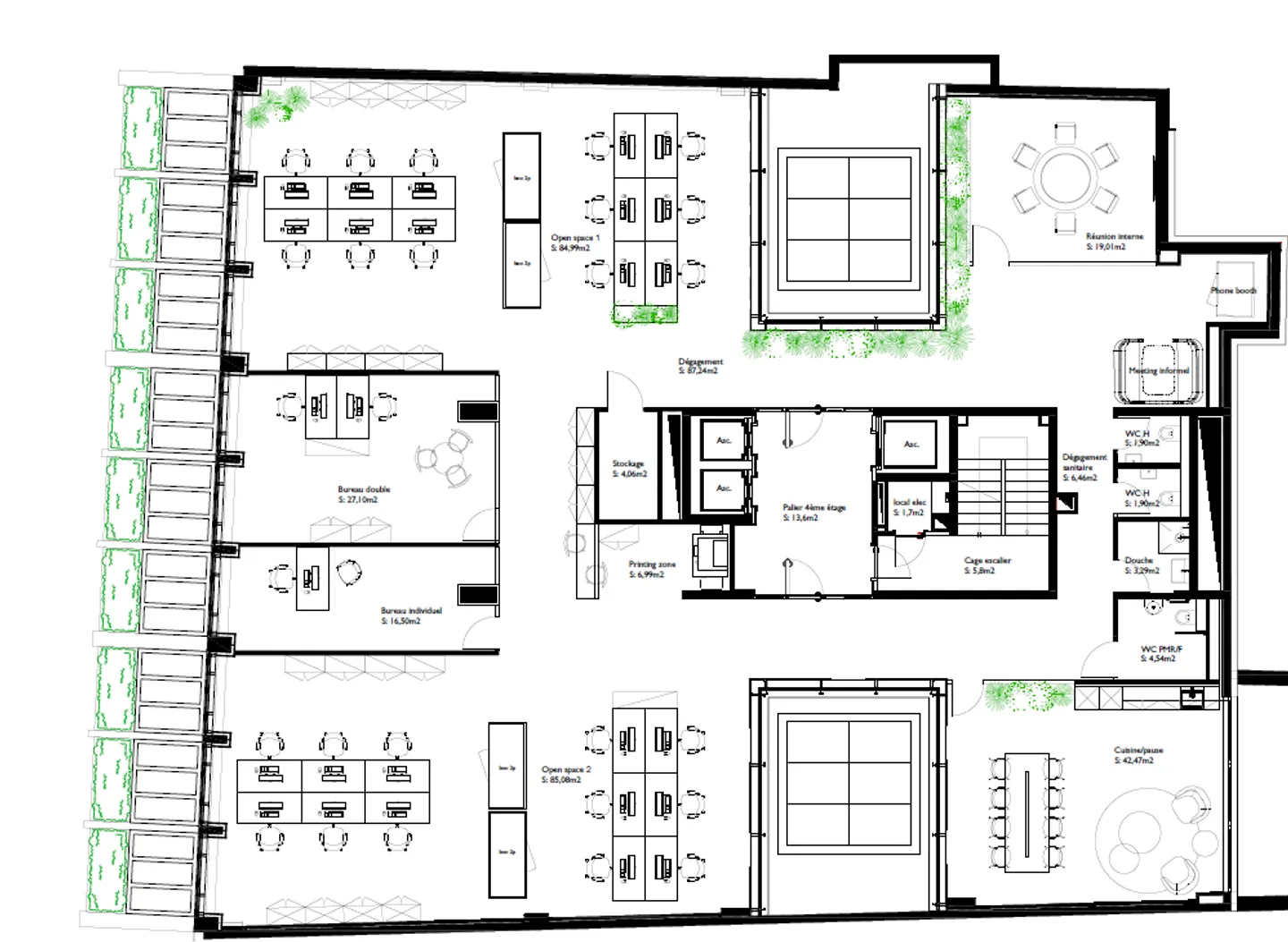
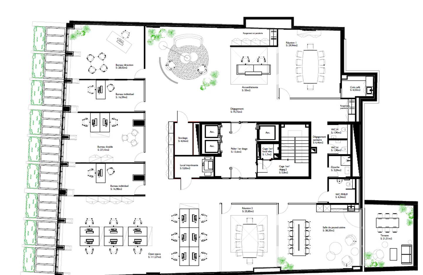
1'560 m2 verbleibend, verteilt auf 4 Ebenen
Typische Etage von 398 m2
Zwei Innenhöfe
Helle Räume
Hochwertige Ausstattung
Übergabe der Räumlichkeiten:
Aktive Decken
Bodenbelag
Sanitäreinrichtungen und Wasseranschlüs...
Immobiliendetails
- Verfügbar ab
- Nach Vereinbarung
- Renovierungsjahr
- 2024
- Wohnfläche
- 1650 m²
- Nutzfläche
- 1650 m²



