Bürofläche mieten - Löwenstrasse 60, 8001 Zürich
Warum Sie diese Immobilie lieben werden
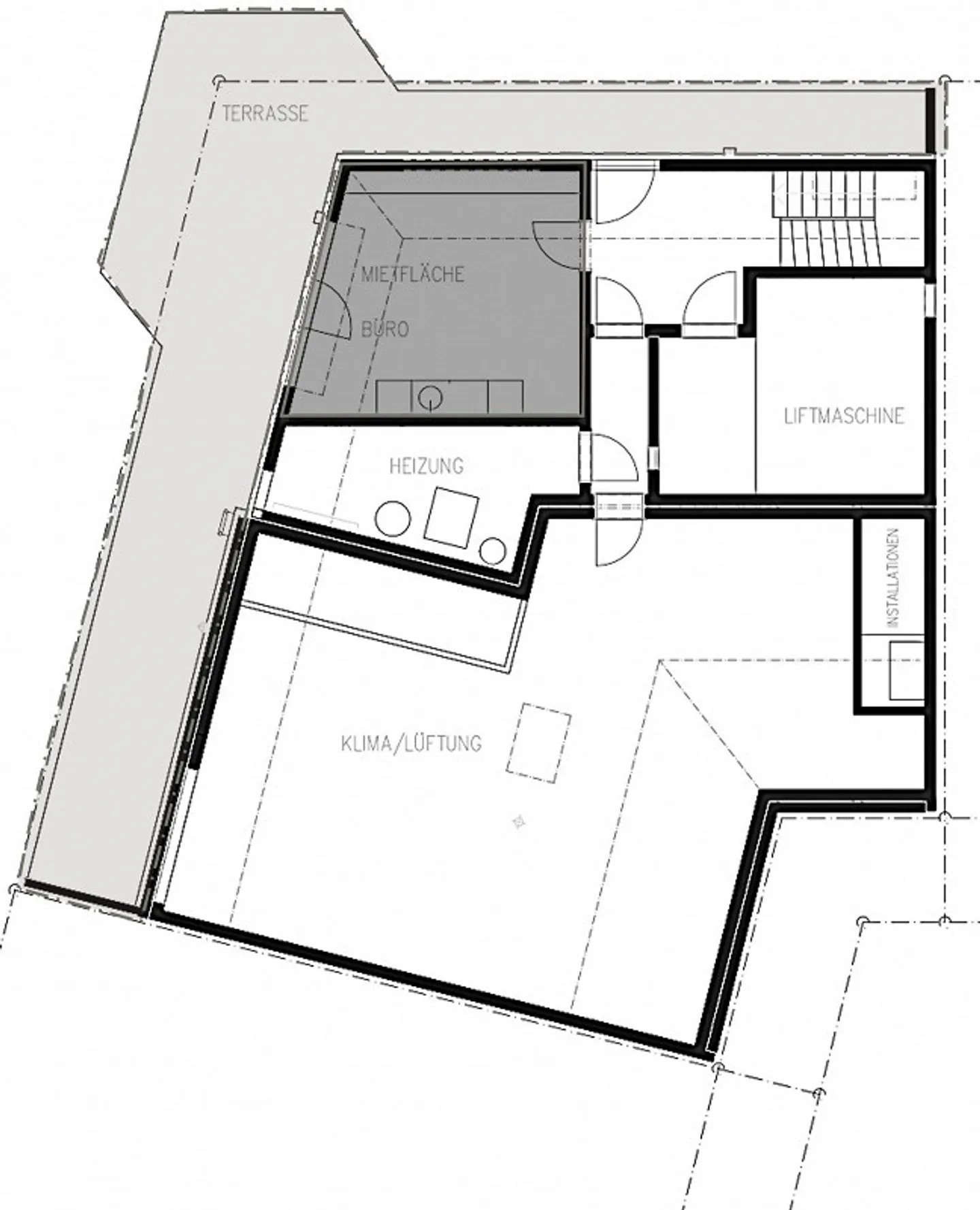
Dachterrasse mit Aussicht
Grosse Küche vorhanden
Zentrale Lage
Besichtigung vereinbaren
Besichtigung buchen
«Arbeiten mit Weitblick - ausgebaute Büroetage mit Dachterrasse nahe HB»
Arbeiten mit Weitblick - ausgebaute Büroetage mit Dachterrasse nahe HB
Adresse: Löwenstrasse 60 / Schützengasse 25, 8001 Zürich
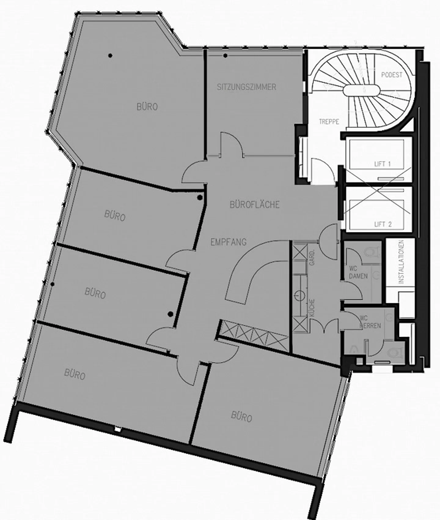
Bürofläche: ca. 204 m²
Etagen: 5 + 6. OG
Ausbau: Ausgebaut
Verfügbarkeit: ab Q1 2026
Lage:
An einer der begehrtesten Adressen im Herzen von Zürich stehen 204 m² Bürofläche verteilt auf zwei Etagen zur Verfügung – nur wenige Schritte vom Hauptbahnhof entfernt. Die exzellente Lage kombiniert perfekte Erreichbarkeit mit einem inspirierenden Arbeitsumfeld.
Objektbeschreibung:
Die ...
Immobiliendetails
- Verfügbar ab
- Nach Vereinbarung



