Bürofläche mieten - Chemin De L' Etang 55, 1219 Châtelaine
Warum Sie diese Immobilie lieben werden
Anpassbares Bürolayout
Helles und modernes Gebäude
Ausgezeichnete Anbindung an ÖPNV
Besichtigung vereinbaren
Besichtigung buchen
Büro
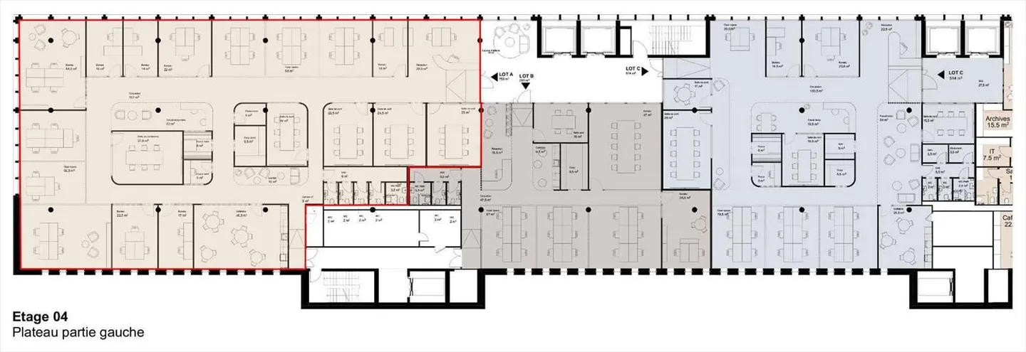
Zu vermieten – Rohbüros im Quartier de l'Étang
Entdecken Sie diese Rohbüros im 4. Stock eines modernen und funktionalen Gebäudes im Herzen des Quartier de l'Étang in Genf.
Ideal für Unternehmen, die nach einem modularen und skalierbaren Raum suchen, bietet diese Immobilie die Möglichkeit einer maßgeschneiderten Gestaltung, die vom Eigentümer gegen eine attraktive zusätzliche Miete durchgeführt wird.
Highlights:
- Rohbüros, die nach Ihren Bedürfnissen gestaltet werden können
- Möglichkeit einer sch...
Immobiliendetails
- Verfügbar ab
- Nach Vereinbarung
- Wohnfläche
- 758 m²



