Bürofläche mieten - Rue De Montbrillant 52, 1202 Genève
Warum Sie diese Immobilie lieben werden
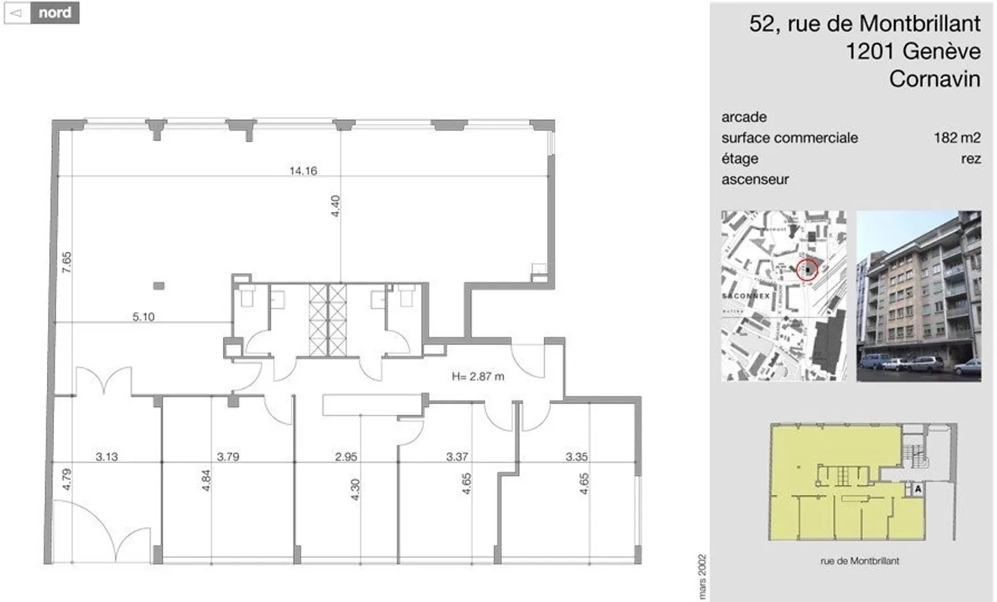
Geräumige Fläche von 182 m²
Verschiedene Büroeinrichtungen
Praktischer Zugang zu Toiletten
Besichtigung vereinbaren
Besichtigung buchen
Arcade nahe dem Cornavin-Bahnhof
Diese schöne Gewerbefläche von 182 m2 im Erdgeschoss verfügt über mehrere Büros, zwei Toiletten und einen großen Raum, der auf die Rückseite des Gebäudes geht.
Kostenaufstellung
- Nettokosten
- CHF 5'934
- Zusätzliche Kosten
- CHF 300
- Gesamtkosten
- CHF 5'934
Immobiliendetails
- Verfügbar ab
- Nach Vereinbarung
- Baujahr
- 1959
- Wohnfläche
- 182 m²
- Nutzfläche
- 182 m²



