Geschäft mieten - Route De Sauverny 5, 1290 Versoix
Warum Sie diese Immobilie lieben werden
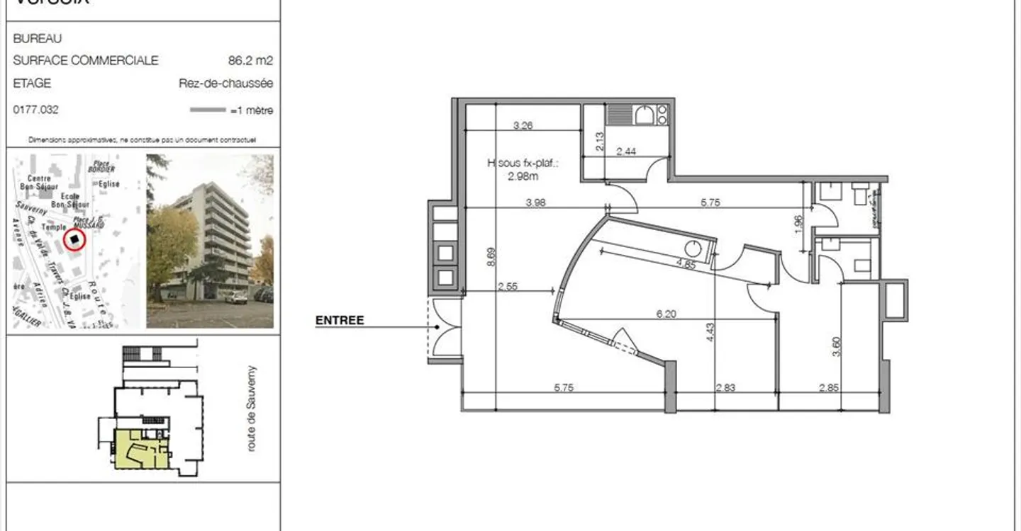
93 m² gut gestalteter Grundriss
Große dreifach verglaste Fenster
Kürzlich renovierte Fassade
Besichtigung vereinbaren
Besichtigung mit maison.work buchen
ZU VERMIETEN? Helle Arcade von 93 m² in Versoix
Befindet sich in der Route de Sauverny 5, direkt parallel zur Route Suisse, profitiert diese Handelsarkade von einer praktischen und sichtbaren Lage im Herzen eines dynamischen Wohngebiets von Versoix, in unmittelbarer Nähe zu Annehmlichkeiten und Verkehrsachsen.
Hauptvorteile:
- Gut gestaltete Fläche von 93 m²
- Schöne Fenster (Dreifachverglasung) bieten hervorragende Sichtbarkeit
- Helle Räumlichkeiten mit kürzlich renovierter Fassaden des Gebäudes...
Kostenaufstellung
- Nettokosten
- CHF 3’100
- Zusätzliche Kosten
- CHF 100
- Gesamtkosten
- CHF 3’100
Immobiliendetails
- Verfügbar ab
- Nach Vereinbarung
- Wohnfläche
- 93 m²
- Nutzfläche
- 93 m²



