1 / 5

Bürofläche mieten - Industriestrasse 5, 5242 Lupfig

3. Etage
CHF 3’360.-
-

Warum Sie diese Immobilie lieben werden

Helle, moderne Innenräume

Barrierefreier Zugang

Exzellente Verkehrsanbindungen

Besichtigung vereinbaren

Besichtigung mit Meier buchen

Meier
AARBRUGG AG

Attraktive büro- und gewerbefläche an verkehrstechnisch bester lage

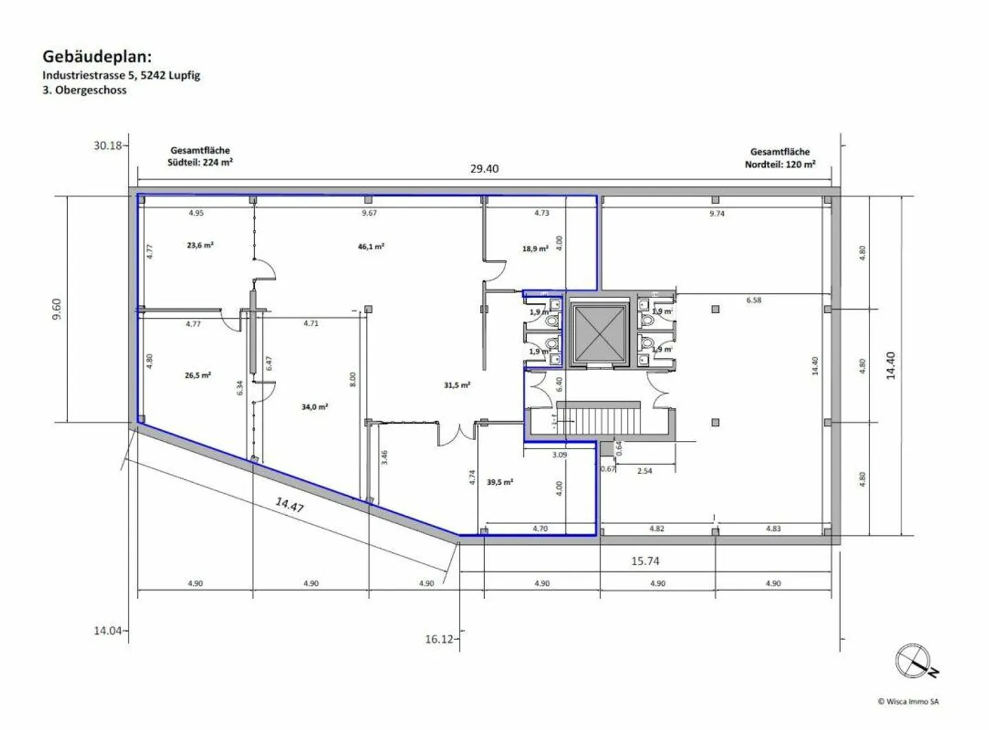
Suchen Sie nach einem attraktiven, neuen Standort mit bester Erreichbarkeit und optimaler Infrastruktur? Realisieren Sie die Zukunft Ihrer Unternehmung auf über 224 m².

Diese lichtdurchflutete und optimal unterteilte Fläche im 3. Obergeschoss überzeugt in jeglicher Hinsicht.

Die vielfältig nutzbaren, barrierefreien Räumlichkeiten sind sowohl für den Individualverkehr als auch mittels dem öffentlichen Verkehr - Bus sowie S-Bahn - hervorragend erreichbar. Die Lage in unmittelbarer Nähe zum Autobahnk...

Immobiliendetails

Verfügbar ab
Nach Vereinbarung
Renovierungsjahr
2024

Eigenschaften

Garage
Parkplätze
Lift
Rollstuhlgerecht

Agentur

AARBRUGG AG
Adresse:Brugg AG, Seidenstrasse, 5200
Ref: Industriestrasse 5, Lupfig - 3. Obergeschoss.300d5635-a5a1-11f0-89d7-069ae14c7a06

Standort

Industriestrasse 5, 5242 Lupfig

Quellen