1 / 13

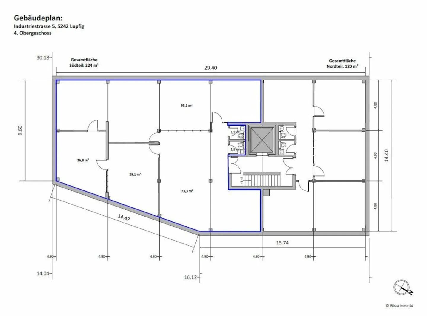
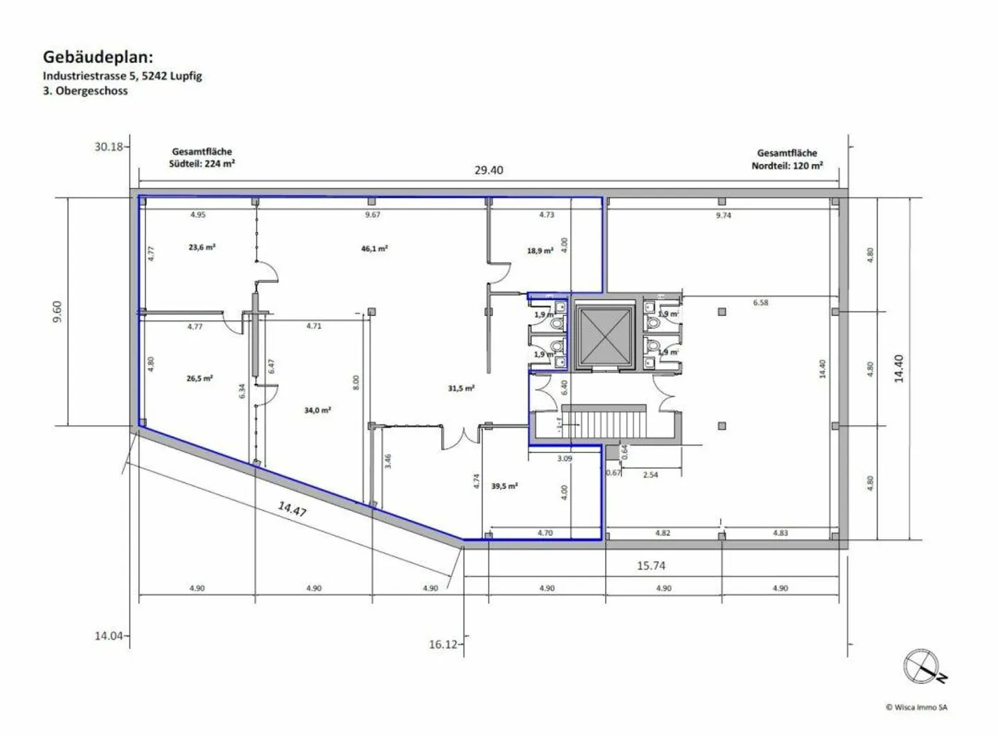
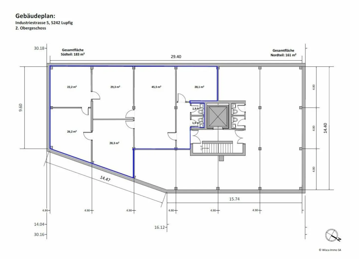
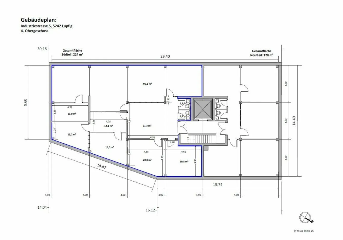
Bürofläche mieten - Industriestrasse 5, 5242 Lupfig

CHF 9’465.-
-

Warum Sie diese Immobilie lieben werden

Hervorragender ÖV-Anschluss

Moderne, helle Innenräume

Barrierefreie Einrichtungen verfügbar

Besichtigung vereinbaren

Besichtigung mit Meier buchen

Meier
AARBRUGG AG

Repräsentative büro- und gewerbeflächen mit bester verkehrsanbindung

Suchen Sie nach einem attraktiven, neuen Standort mit bester Erreichbarkeit und optimaler Infrastruktur? Realisieren Sie die Zukunft Ihrer Unternehmung in dieser Gewerbeliegenschaft.

Diese vielseitigen, lichtdurchflutenden und optimal unterteilten Flächen überzeugen in jeglicher Hinsicht.

Die vielfältig nutzbaren, barrierefreien Räumlichkeiten sind sowohl für den Individualverkehr als auch mittels dem öffentlichen Verkehr - Bus sowie S-Bahn - hervorragend erreichbar. Die Lage in unmittelbarer Nähe...

Immobiliendetails

Verfügbar ab
Nach Vereinbarung
Renovierungsjahr
2024

Eigenschaften

Garage
Parkplätze
Lift
Rollstuhlgerecht

Agentur

AARBRUGG AG
Adresse:Brugg AG, Seidenstrasse, 5200
Ref: Industriestrasse 5, Lupfig.083d06f6-a5a1-11f0-89d7-069ae14c7a06

Standort

Industriestrasse 5, 5242 Lupfig

Quellen