Bürofläche mieten - Grindlenstrasse 5, 8954 Geroldswil
Warum Sie diese Immobilie lieben werden
Moderner Vinylboden
Integrierter Archivraum
Netzwerkverkabelung vorhanden
Besichtigung vereinbaren
Besichtigung mit Fabian buchen
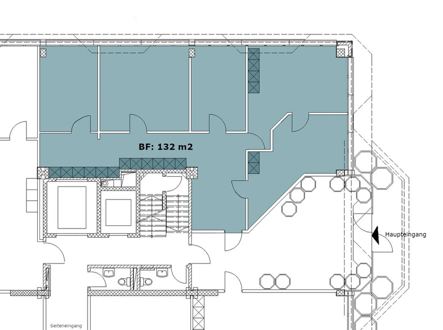
Ihre neue Bürofläche mit 132 m2
Wir vermieten per sofort oder nach Vereinbarung, diese praktischen Büroflächen. Das Gebäude ist gut erschlossen, damit Sie Ihr Arbeitsplatz bequem erreichen.
Mietfläche mit 132 m2 im EG, CHF 1'870.00 (exkl. NK)
- Boden mit Vinyl in Holzoptik ausgestattet
- Trennwände weiss gestrichen
- Deckenbeleuchtung in sämtlichen Räumen
- Diverse Einbauschränke
- Elektrokanal entlang der Fensterfronten
- Netzwerkverkabelung bereits vorhanden
Bei allen Mietflächen stehen Ihnen ein Waren- sowie Personenlift und Toilet...
Immobiliendetails
- Verfügbar ab
- Nach Vereinbarung
- Baujahr
- 1991
- Wohnfläche
- 132 m²
- Nutzfläche
- 132 m²




