Geschäft mieten - Gartematt 5, 8180 Bülach
Warum Sie diese Immobilie lieben werden
Vielseitige Nutzungsmöglichkeiten
Ausgestattete Küchennische
Charmanter Balkonbereich
Besichtigung vereinbaren
Besichtigung buchen
Zentrumsnahes büro zu vermieten
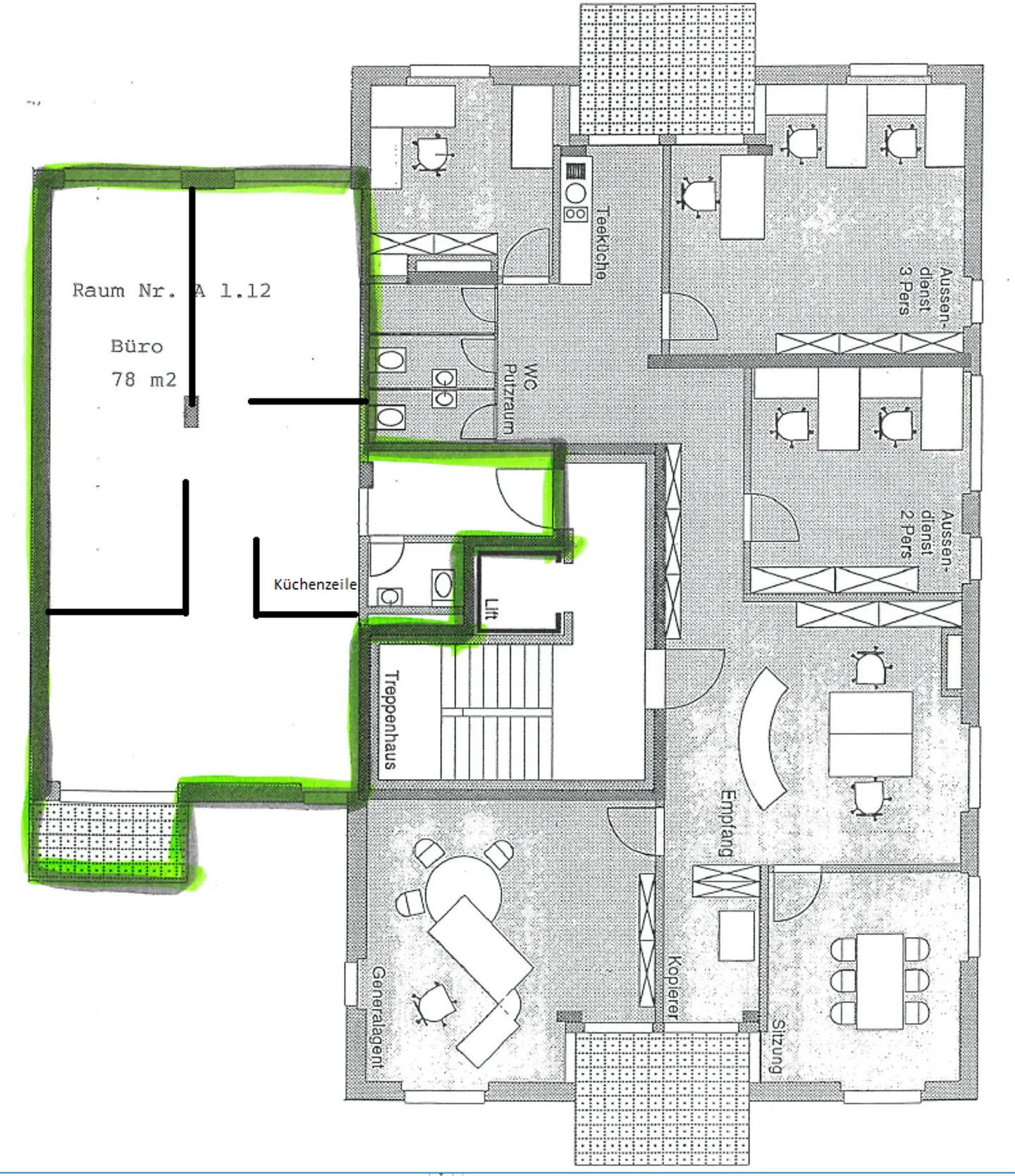
Per sofort oder nach Vereinbarung vermieten wir an der Gartematt 5 in Bülach helle Büroräumlichkeiten (ca. 78m2).
- Zimmer 1 ca. 22.5m2 / Zimmer 2 ca. 18.5m2 / Zimmer 3 ca. 14m2 / Vorzimmer / ca. 20m2 / WC und Küche
- alle Zimmer mit Parkett ausgestattet
- kleine Küchennische mit Kochherd
- WC mit Plattenboden
- Balkon
Diese Räumlichkeiten können vielseitig verwendet werden. Z.B. als Praxis, Schule, Büro etc. Den Ideen sind keine Grenzen gesetzt.
Haben wir Ihr Interesse geweckt? Gerne können Sie mit un...
Kostenaufstellung
- Nettokosten
- CHF 1’316
- Zusätzliche Kosten
- CHF 146
- Gesamtkosten
- CHF 1’316
Immobiliendetails
- Verfügbar ab
- Nach Vereinbarung
- Baujahr
- 1990
- Wohnfläche
- 78 m²
- Nutzfläche
- 78 m²



