Bürofläche mieten - Emil-Staub-Strasse 5, 8708 Männedorf
Warum Sie diese Immobilie lieben werden
Helle Räume mit großen Fenstern
Zentrale Lage mit guter Anbindung
Charmanter PVC-Boden
Besichtigung vereinbaren
Besichtigung mit Denis buchen
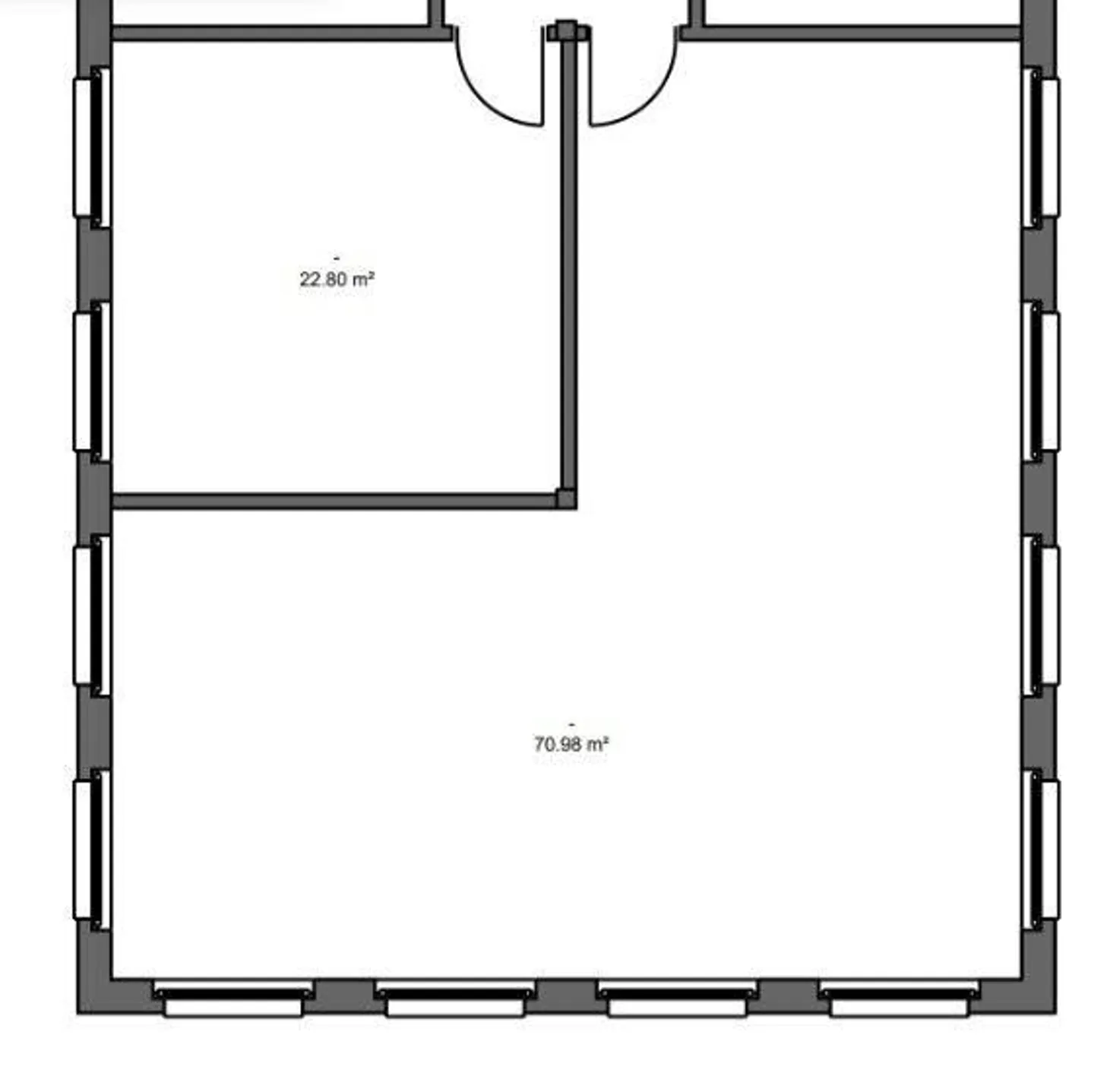
Ihre neue Mietfläche - ideal für Ateliers, Büros oder Praxen
Wir vermieten einen vielseitig nutzbaren und stilvollen Gewerberaum mit ca. 70m2 an zentraler Lage in Männedorf.
Die Fläche liegt im 1. Obergeschoss. Die Fenster sind alle ebenfalls so konzipiert, dass der Raum mit Tageslicht durchflutet wird. Die Fläche eignet sich ideal für Ateliers, Büros oder Praxen.
Es erwartet Sie aktuell folgende Ausstattung:
- PVC-Boden mit Charme
- Helle Räume mit grossen Fenstern
- Stromanschlüsse sind vorhanden
- Toilettenanlage zur Mitbenutzung
- Zentrale Lage mit guter...
Kostenaufstellung
- Nettokosten
- CHF 1'829
- Zusätzliche Kosten
- CHF 196
- Gesamtkosten
- CHF 1'829
Immobiliendetails
- Verfügbar ab
- Nach Vereinbarung
- Baujahr
- 2000



