Bürofläche mieten - Hauptstrasse 48, 6170 Schüpfheim
Warum Sie diese Immobilie lieben werden
Hohe Sichtbarkeit
Grosszügige Fensterfront
3 Aussenparkplätze inklusive
Besichtigung vereinbaren
Besichtigung mit Gewerbe-Treuhand buchen
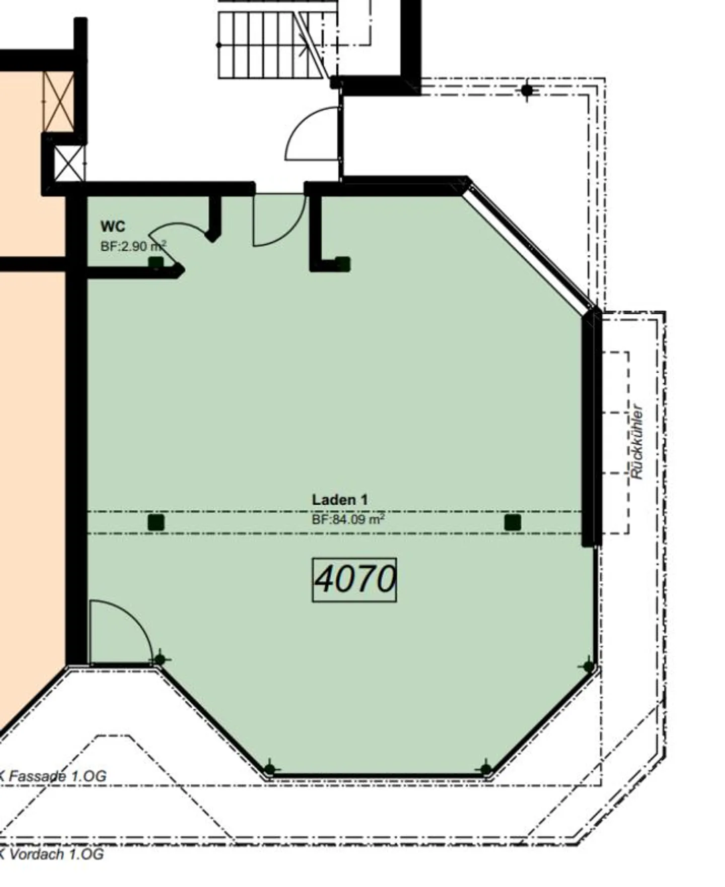
Zur Vermietung steht ein Gewerberaum im Erdgeschoss in der Nähe des Dorfzentrums. Der Laden bietet eine attraktive, gut frequentierte Lage für Einzelhandel, Dienstleistungen oder als Bürofläche. Die grosszügige Fensterfront ermöglicht eine hervorragende Präsentation Ihrer Produkte oder Dienstleistungen und sorgt für eine helle, freundliche Atmosphäre.
* 87 m² Gewerbefläche
* Direkt an der Kantonsstrasse in Schüpfheim, hohe Sichtbarkeit und gute Erreichbarkeit
* Grosszügige Fensterfront mit Sonnenst...
Kostenaufstellung
- Nettokosten
- CHF 1’430
- Zusätzliche Kosten
- CHF 120
- Gesamtkosten
- CHF 1’430
Immobiliendetails
- Verfügbar ab
- Nach Vereinbarung




