Bürofläche mieten - Sennweidstrasse 47, 6312 Steinhausen
Warum Sie diese Immobilie lieben werden
Anpassbare Raumaufteilungen
Günstige Mietkonditionen
Vorhandenes Mobiliar verfügbar
Besichtigung vereinbaren
Besichtigung mit Andreas buchen
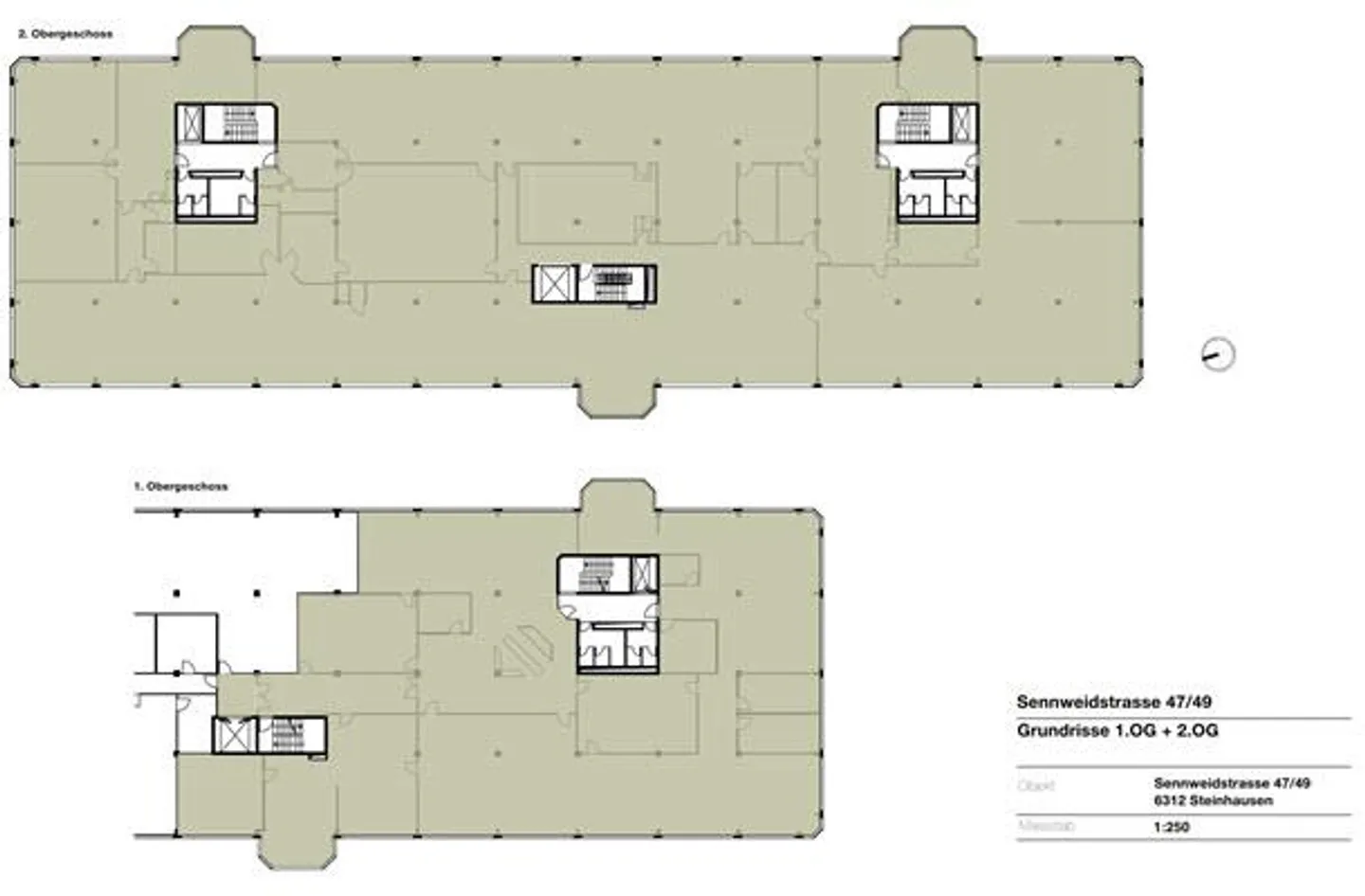
Preiswerte und flexible Zwischennutzung - Büro-/Gewerbeflächen ab 250 m² bis 3 024 m²
Suchen Sie nach Büro- und Gewerbeflächen, deren Grösse Sie flexibel bestimmen können? Teilen Sie uns Ihren Flächenbedarf (ab 250 m² Mindestmietfläche) mit und wir prüfen gerne geeignete Optionen.
Für das Büro- und Gewerbehaus Sennweidstrasse 47/49 in Steinhausen ist ab Ende 2029 eine umfassende Sanierung geplant. Zur befristeten Zwischennutzung vermieten wir flexible Büro- und Gewerbeflächen auf einer Gesamtfläche von 3 024 m², welche das 1. Obergeschoss (1 068 m²) und 2. Obergeschoss (1 956 m²...
Immobiliendetails
- Verfügbar ab
- 01.02.2026
- Baujahr
- 1989
- Wohnfläche
- 250 m²
- Nutzfläche
- 250 m²



