Bürofläche mieten - Birkenstrasse 43a, 6343 Rotkreuz
Warum Sie diese Immobilie lieben werden
Modernes Büro mit Sitzungsräumen
Geräumige 3m hohe Decken
Direkter Zugang zum Warenlift
Besichtigung vereinbaren
Besichtigung mit Andreas buchen
Preiswerte büro- und gewerbeflächen - flexible flächen nach ihren bedürfnissen
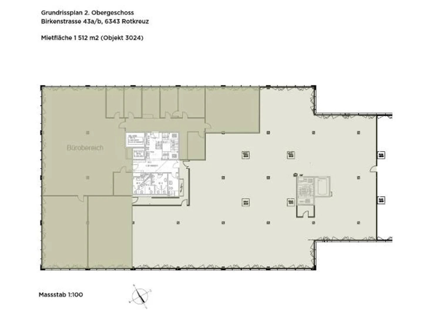
An der Birkenstrasse 43a/b in Rotkreuz steht eine Büro- und Gewerbefläche von 1 512 m² zur Miete.
Die als Mehrzweckgebäude konzipierte Liegenschaft erlaubt eine überdurchschnittlich vielseitige und zudem flexible Nutzung. Die Räume eignen sich besonders für die verschiedensten Bedürfnisse von Büro-, Gewerbe-, Handels- und Dienstleistungsbetrieben.
Der bestehende Ausbau umfasst moderne, bezugsbereite Büroflächen (634 m²) mit mehreren Sitzungszimmern. Ein funktionaler Aufenthaltsraum mit Teeküche ...
Immobiliendetails
- Verfügbar ab
- 01.07.2026
- Baujahr
- 1998
- Wohnfläche
- 1512 m²
- Nutzfläche
- 1512 m²



