Bürofläche mieten - Anglikerstrasse 42, 5610 Wohlen AG
Warum Sie diese Immobilie lieben werden
Helle Räume mit großen Fenstern
Zweistöckiges Regallager
Praktische LKW-Zufahrt
Besichtigung vereinbaren
Besichtigung mit maison.work buchen
Commercial for rent, anglikerstrasse 42 (wohlen, switzerland)
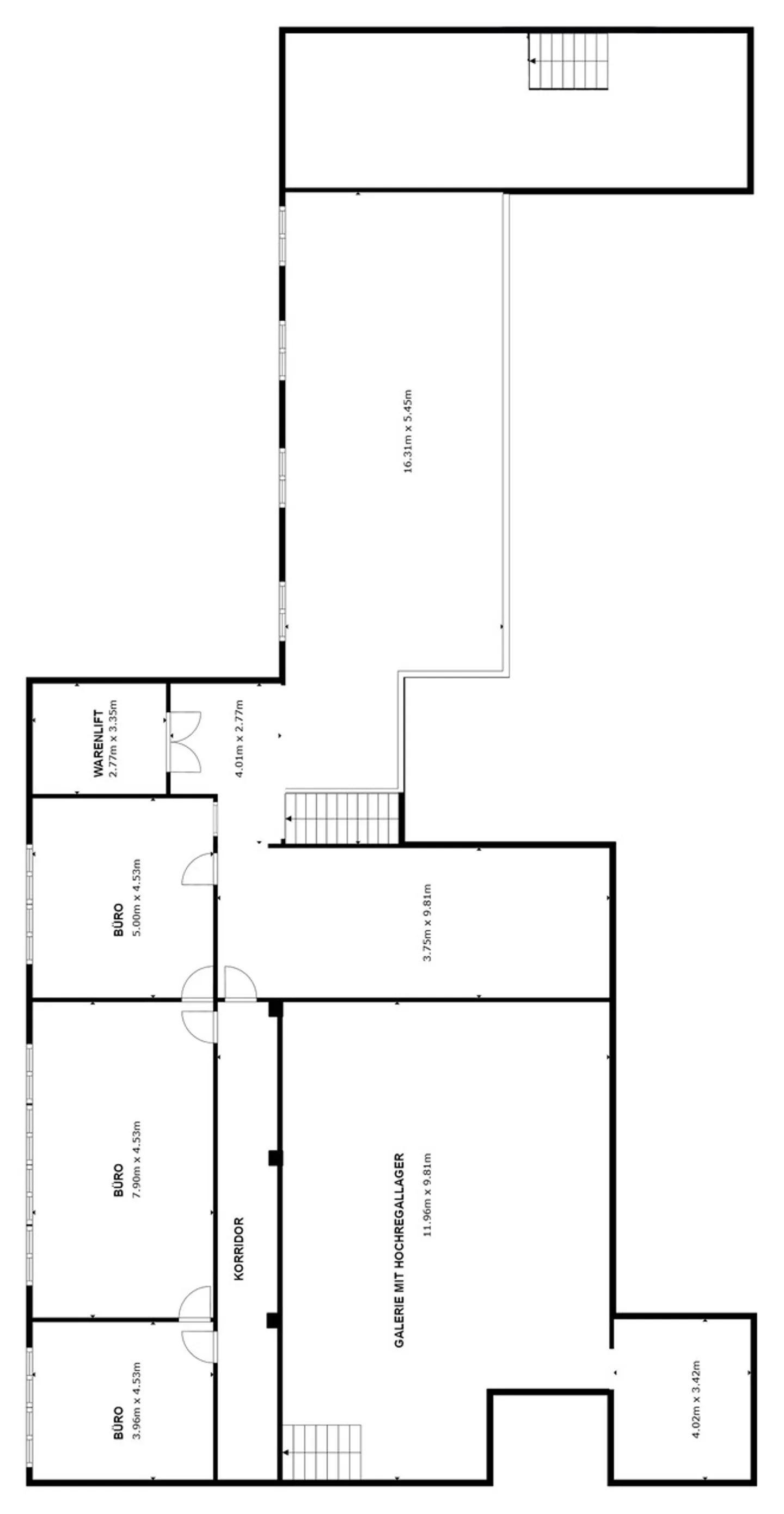
Wir vermieten ab sofort vielseitig nutzbare Lagerflächen in einer gepflegten Lagerhalle mit hervorragender Infrastruktur. Die Halle ist teilweise mit einem zweistöckigen Regallager ausgestattet und bietet sowohl klassische Lagerflächen als auch Hochregallager-Möglichkeiten.
Ausstattung & Highlights:
* Helle Räume mit grossen Fenstern
* Zweistöckiges Regallager für Kleinteile vorhanden
* Laderampe für LKWs – ideal für Be- und Entladung
* Hebebühne & Warenlift
* Aufenthaltsraum & Toilette ...
Immobiliendetails
- Verfügbar ab
- Nach Vereinbarung
- Wohnfläche
- 897 m²
- Nutzfläche
- 897 m²



