1 / 6

Bürofläche mieten - Bernstrasse 41, 3175 Flamatt

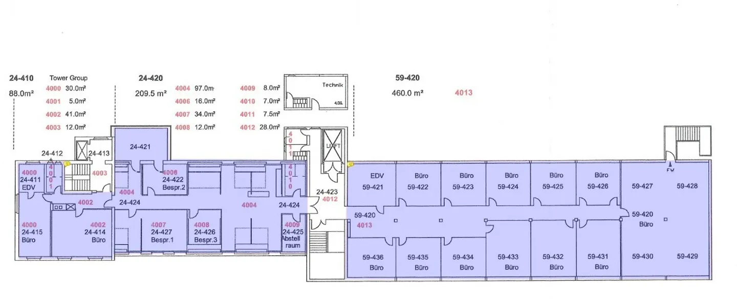
708 m² • 3. Etage
CHF 11’210.-
CHF 190 m² / year

Warum Sie diese Immobilie lieben werden

Vollständig ausgebaute Büros

Helle und geräumige Anordnung

Parkplätze zur Miete verfügbar

Besichtigung vereinbaren

Besichtigung mit Julia buchen

Julia Spühler
PROCIMMO SA

Attraktive büroräumlichkeiten mit guten zufahrtsmöglichkeiten

Direkt an der Hauptverkehrsachse in Flamatt befinden sich diese attraktiven Büroflächen. 

Folgende Details überzeugen: 

* Komplett ausgebaut

* Vorhandene Raumaufteilung: Einzelbüros, Konferenzräume sowie Grossraumbüros

* Bodenbelag: Teppich

* Ansprechender Aufenthaltsraum mit Teeküche

* Lichtdurchflutet und freundliche

* Grundbeleuchtung

* Strom- und Netzwerkanschlüsse

* Wasseranschlüsse

* Toiletten und Duschen für Damen und Herren getrennt

* Personenlift sowie Warenlift vorhanden

* Teilweise mit Klimaanla...

Immobiliendetails

Verfügbar ab
01.11.2024
Wohnfläche
708
Nutzfläche
708

Agentur

PROCIMMO SA
Adresse:Löwenstrasse 20, 8001, Zürich
Julia Spühler
Ref: 4985610
Online seit
08/09/2025
vor 1 Monat

Standort

Bernstrasse 41, 3175 Flamatt