Bürofläche mieten - 4057 Basel
Warum Sie diese Immobilie lieben werden
Geräumiges Großraumbüro
Gemeinschaftsraum mit Annehmlichkeiten
Parkmöglichkeiten verfügbar
Besichtigung vereinbaren
Besichtigung buchen
«bürofläche direkt am rheinufer beim dreiländereck»
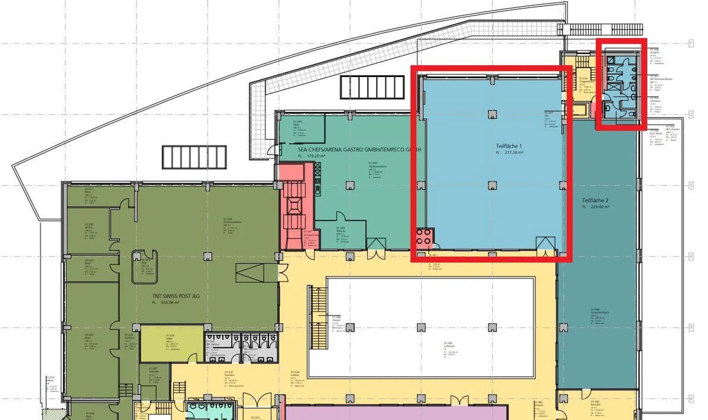
Bürofläche direkt am Rheinufer beim Dreiländereck Diese attraktive Bürofläche befindet sich in unmittelbarer Nachbarschaft zum Dreiländereck an der Uferstrasse 90 in Basel.Folgende Mietfläche steht zur Vermietung frei:
* ca. 277 m2 im 1. Obergeschoss
* Grossraumbüro mit Betonboden
* Lüftung & Deckenbeleuchtung vorhanden
* Duschen und Garderoben im Erdgeschoss für alle Mieter zur Mitbenutzung
* Ausgebaute Sanitäranlagen zur alleinigen Benutzung auf der Etage
* Personenlifte vorhanden
* grosser gemeinsam...
Immobiliendetails
- Verfügbar ab
- Nach Vereinbarung



