Bürofläche mieten - Sonnmatthof 4, 6023 Rothenburg
Warum Sie diese Immobilie lieben werden
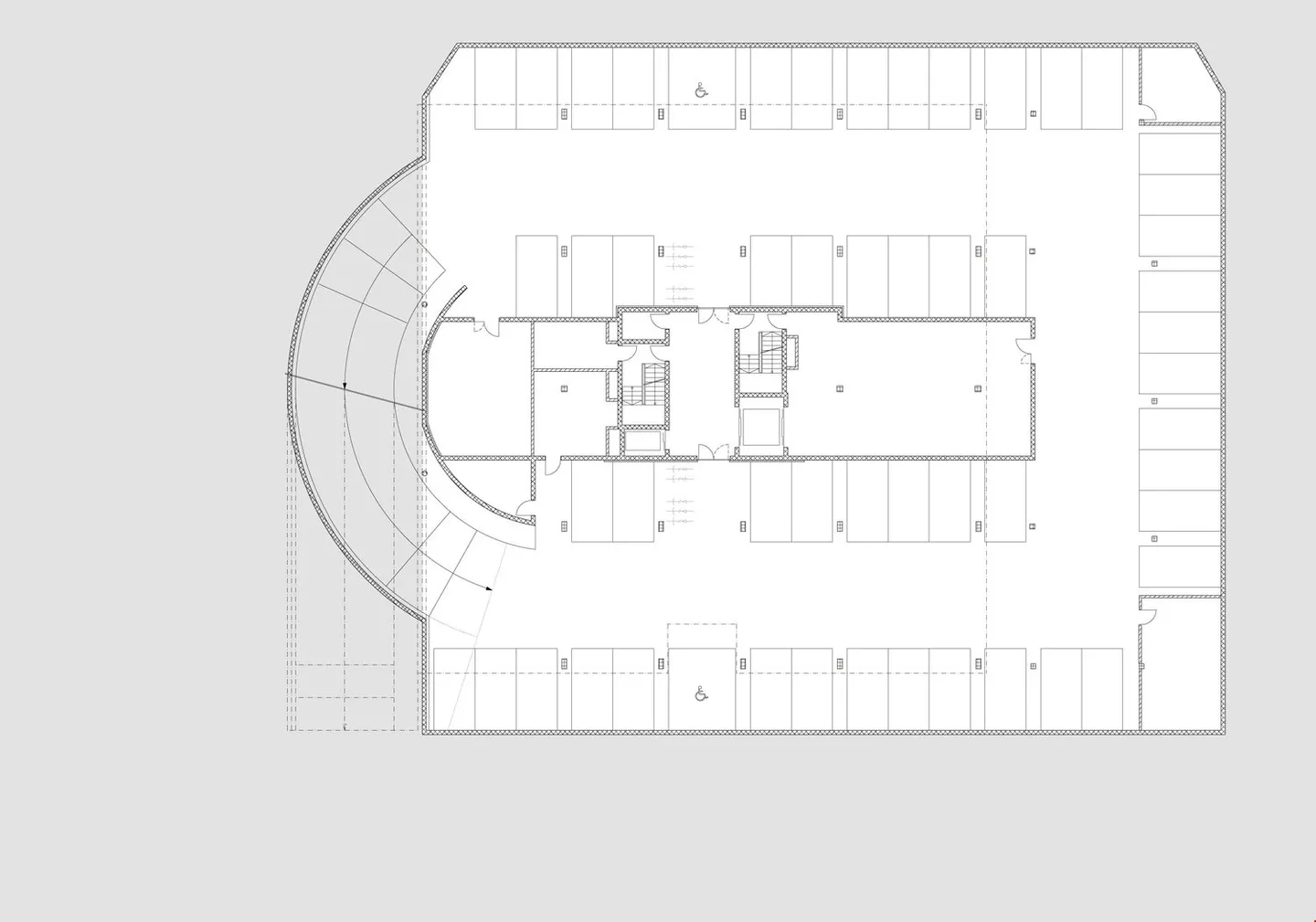
107 Parkplätze vorhanden
Zugang zur Terrasse und Park
Flexible Bürolayouts
Besichtigung vereinbaren
Besichtigung mit Treuhand buchen
Sonnmatthof 4 – Gewerbe- und Bürogebäude in Rothenburg
In den zwei Untergeschossen sind nebst Archiv- und Technikräumen 108 Parkplätze vorhanden. Im Aussenbereich ca. 13 Aussenparkplätze für PW Besucher und ca. 20 Abstellplätze für PW/Anhänger und dergleichen in zum Teil in gedecktem Unterstand.
Zum Aufenthalt (Pause/Mittagessen etc.) steht auch ein Teil der Terrasse Attika zu sowie eine Parkanlage im Erdgeschoss zur Verfügung für alle Mieter.
_
UG 2 – Lager
Freie Fläche: 300 m2
Raumhöhe: 245 cm
Preis: 90.– / m2 / Jahr
_
EG – Gewerbe/Ausstellung
Freie Fläche...
Immobiliendetails
- Verfügbar ab
- 22.01.2025
- Baujahr
- 2025
- Wohnfläche
- 3800 m²
- Nutzfläche
- 3800 m²


