Werkstatt mieten - Rufswilstrasse 4, 6153 Ufhusen
Warum Sie diese Immobilie lieben werden
Hohe Decken für schwere Lasten
Elektrisches Rolltor
Sofort bezugsbereit
Besichtigung vereinbaren
Besichtigung mit Kurmann buchen
Grosszügige Werkhalle mit vielseitigen Nebenräumen
Grosszügige Werkhalle mit vielseitigen Nebenräumen
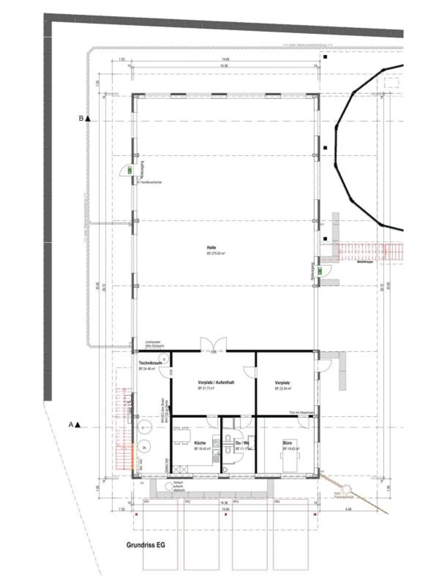
Diese funktionale und hervorragend erschlossene Gewerbefläche bietet optimale Bedingungen für Handwerk, Produktion, Lager oder Logistik. Die Immobilie überzeugt durch grosszügige Arbeitsflächen, hohe Räume und praktische Nebenräume.
Flächen und Raumaufteilung:
Werkhalle: 390 m² (270 m² mit Raumhöhe ca. 7.50 m / 120 m² mit Raumhöhe ca. 3.50 m)
- Lastenkran bis 5t, deckend über die gesamte Hallenfläche, perfekt für schwere Lasten, Montagearbeiten und ...
Immobiliendetails
- Verfügbar ab
- Nach Vereinbarung



